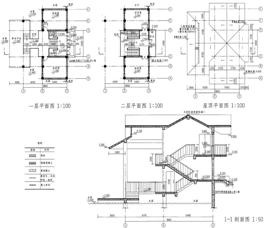
任务说明
图示为某滨水建筑全部架空于水面之上,按指定剖切线位置和构造要求绘制剖面图,剖面图应正确反映平面图所示关系。
构造要求
结构:现浇钢筋混凝土结构。
地面:素土夯实,120mm厚素混凝土,面铺地砖。
楼面:亲水平台:120mm厚现浇钢筋混凝土楼板,面铺地砖,板底抹灰。
屋面:120mm厚现浇钢筋混凝土屋面板,坡度1/2,面贴屋面瓦,板底抹灰。屋面檐口处无檐沟和封檐板,平面图上屋檐标高为结构面标高。
墙:240mm厚砌体墙,水泥砂浆面层。
楼梯:120mm厚现浇钢筋混凝土板式楼梯,梯级均为260mm×160mm,上铺地砖,板底抹灰。梁:现浇钢筋混凝土梁,截面240mm(宽)×400mm(高)。
门:门洞口高均为2100mm。
窗:三角形老虎窗的窗底标高见屋顶平面,其窗顶抵至屋面板底。其余窗与门同高,阳台处窗台标高为3.460。
栏杆:均为通透式金属栏杆。
室外踏步:素土夯实,100mm厚素混凝土,面铺地砖。挡土墙:300mm厚钢筋混凝土。
任务要求
1.绘制1-1剖面图,按图例绘出构造要求所列各项内容及建筑可见线。
2.在1-1剖面图上标注楼地面、楼梯休息平台、窗口、檐口及屋脊的标高。

参考作图提示
