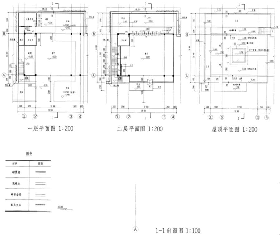
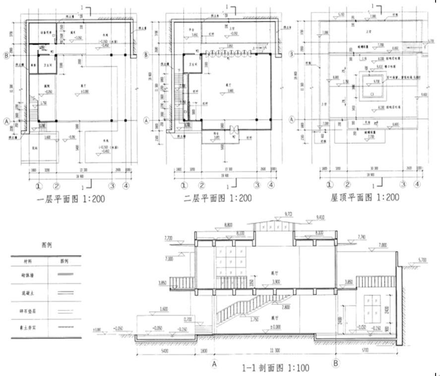
任务说明
图示为南方某坡地园林建筑平面图,按指定剖切线位置和构造要求绘制1-1剖面图,剖面图应正确反映平面图所示关系。
构造要求
结构:现浇钢筋混凝土结构。
地面:素土夯实,100mm厚碎石垫层,120mm厚素混凝土。楼面:120mm厚现浇钢筋混凝土楼板。
屋面:120mm厚现浇钢筋混凝土屋面板,女儿墙顶标高8.800。
阳台:150mm厚现浇钢筋混凝土板式阳台。
墙:200mm厚砌体填充墙。
柱:400mm×400mm现浇钢筋混凝土。楼梯:现浇钢筋混凝土板式楼梯。
梁:现浇钢筋混凝土梁,梁截面均为600mm×300mm(高×宽);展厅的楼面及屋面采用井字梁,轴间井字梁距六等分,屋面天窗开口范围内不设梁。
门:除M3门高2400mm外,其余门高平梁底。
窗:C1窗台高900mm,窗高2400mm;C2为落地窗,窗高平梁底;C3为百叶高窗,窗台标高8.800,窗高与屋面天窗底平齐。
天窗:夹胶玻璃采光天窗,构造总厚度为30mm。栏杆:栏杆除标注外均为金属通透式栏杆。
栏板:200mm厚钢筋混凝土。
雨篷:30mm厚钢构夹胶玻璃雨篷。
挡土墙:600mm厚钢筋混凝土。
水池底,壁板:200mm厚钢筋混凝土。
任务要求
1.按构造要求绘制1-1剖面图。
2.在1-1剖面图上标注楼地面、天窗、楼梯休息平台、女儿墙及屋面的标高。
3.根据作图结果完成下题的选择题作答。


参考作图提示
