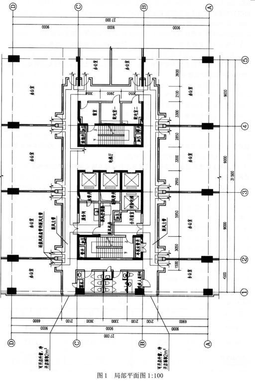
<p>【试题要求】 1.任务描述 某超高层办公楼高区标准层的面积为195㎡,图1为其局部平面,已布置有部分消防设施,根据现行

分类: 建筑技术设计(作图题) 发布时间: 2023-11-02 23:59 浏览量: 0

【试题要求】 1.任务描述 某超高层办公楼高区标准层的面积为195㎡,图1为其局部平面,已布置有部分消防设施,根据现行规范、任务要求和图例,完成其余消防设施的布置。 2.任务要求 (1)布置新风管的防火阀。 (2)布置烟感报警器和自动喷水灭火喷淋头(办公室、走廊、电梯厅和楼梯间除外)。 (3)在未满足要求的建筑核心筒部位补设消火栓。 (4)布置安全出口标志灯。 (5)布置走廊排烟口。 (6)标注防火门及其防火等级。 3.图例(见下表)

详见图 2。