【试题要求】
1.任务描述
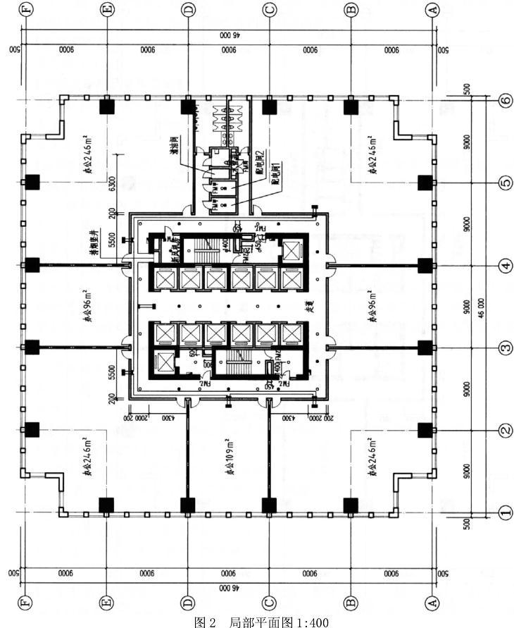
图1为某超高层办公楼,标准层的面积为2000㎡,外墙窗为固定窗,根据现行消防设计规范、任务要求和图例,以经济合理的原则完成消防设施的布置。
2.任务要求
(1)消防排烟:由排烟竖井引出排烟总管,从排烟总管分别接排烟支管到需要设置机械排烟的部位,并画出排烟百叶风口,并在需要的部位设置排烟阀。
(2)正压送风:在需要设置正压送风的部位画出正压送风竖井,每个竖井的面积不小于0.5㎡。
(3)消防报警:除办公空间外,在其他需要的空间布置火灾探测器。
(4)应急照明:布置应急照明灯。
(5)消火栓:除办公空间外,在其他需要的空间布置室内消火栓。
(6)防火门:选用布置不同等级的防大门。
3.图例(见下表)

详见图 2。
