【试题要求】
1.任务描述
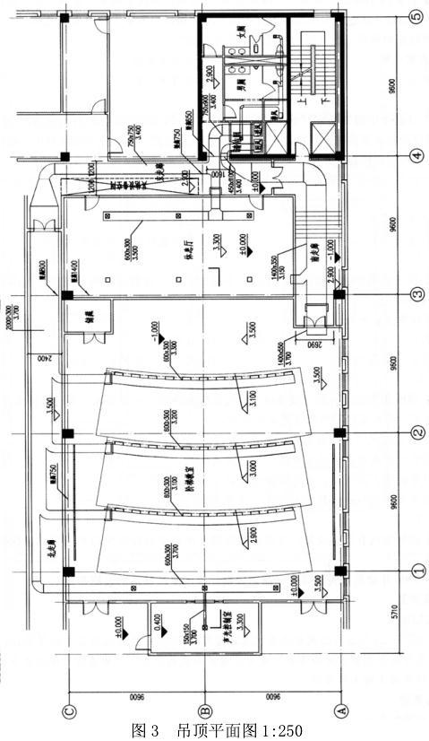
图1、图2为提供的某高校教学楼阶梯教室吊顶平面图和剖面图,根据任务要求,经济合理地绘出全空气系统空调送、回风和排风平面布置图。

2.任务说明
(1)送风要求:主风道始端断面面积不小于0.65㎡,通往教室的主风道始端断面面积不小于0.55㎡,通往休息室的风道断面面积不小于0.18㎡,教室、休息室内末端支风道尺寸为600mm×300mm,声光控制室的末端支风道尺寸为150mm×150mm。风道不得占用其他设备空间,送风口的形式(下送和侧送)根据吊顶形式确定,其中教室内灯槽位置按侧送风口布置。
(2)回风要求:主风道始端断面面积不小于0.49㎡,教室吊顶采用条缝回风口16个。
(3)排风要求:排风道净尺寸为150mm×150mm。
(4)其他条件
①层高5m,北走廊①~③轴梁高800mm,教室内①~③轴梁高1400mm,
轴梁高750mm,④轴门洞梁高650mm。走廊不设送回风口,另有系统解决。
②送回风主风道经清洁室吊顶与竖向风道井相接。
3.任务要求
按照任务说明和所给图例,在吊顶平面图中的阶梯教室、休息室、声光控制室、厕所、清洁室、走廊给出以下内容:
(1)送风管道和送风口布置,并表示出送风管道的断面尺寸(宽×高)。
(2)回风管道和回风口布置,并表示出回风管道的断面尺寸(宽×高)。
(3)排风管道和排风口(排风扇)布置。
4.图例(见详表)

详见图 3。
