【试题要求】
1.任务描述
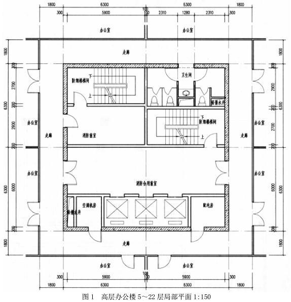
图1为建筑高度超过100m的办公大楼的走廊及核心筒部分平面图。按照要求做出部分消防系统的平面布置图。(不考虑办公室部分)
2.任务要求
该平面布置图应包括以下内容:
(1)消防防排烟部分。
1)在应设加压送风防烟的部位画出送风竖井及送风口,每个送风竖井面积不小于1.3㎡。
2)按规范要求设置排烟竖井及排烟口。每个排烟竖井面积不小于0.6㎡。
(2)灭火系统部分:
1)自动喷水灭火系统的闭式喷头(非水喷雾)的平面布置。
2)按规范要求布置室内消火栓。(可嵌入墙内)
(3)消防疏散部分:
1)按照规范要求设置火灾应急照明灯。
2)安装安全出口标志灯;安装疏散指示灯。
3)按规范要求设置防火门。
4)按规范要求布置消防电梯一台。
3.布置要求
在平面图上,用提供的图例符号,做出布置图。包括以下内容:
(1)选择合理的位置设置防烟送风竖井,及排烟竖井(注明尺寸)并布置风口。
(2)符合规范的前提下,按最少数量的方法布置闭式喷头。
(3)布置室内消火栓。
(4)表示应急灯、安全出口标志灯及疏散指示标志灯位置。
(5)防火门的设置及标明防火门的防火等级。
(6)按消防电梯的要求,做出合理布置,并标明位置。
4.图例(详见表)

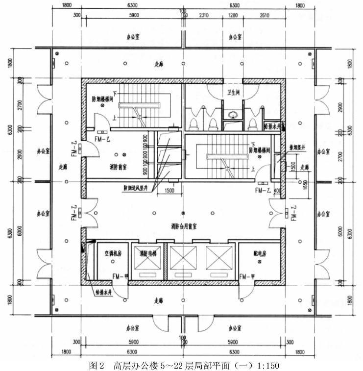
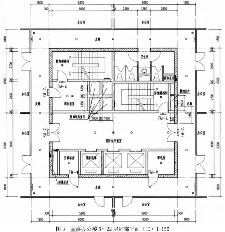
详见图 2、图 3。

