【试题要求】
1.任务描述
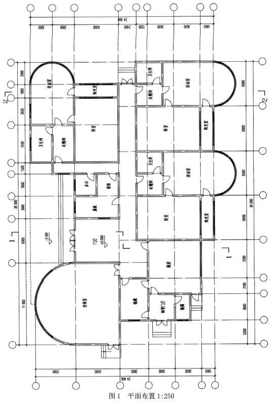
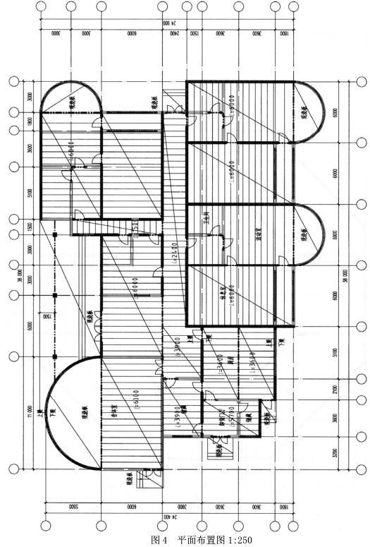
按图示的一层幼儿园建筑平面及剖面图绘出屋面结构平面布置(图1~图3)。设计应经济合理,并符合任务与规范要求。本地区无抗震设计要求,其基础系统能承受正常荷载,剖面图仅表示空间关系,未表示结构构件。


2.任务要求
(1)音体室半圆形平屋面、雨篷及活动室圆弧形部分的平屋面均采用现浇钢筋混凝土结构。
(2)其他部分的屋面板采用预制钢筋混凝土板,预制板长度不大于6m,宽度0.6m及0.9m。
(3)结构布置应尽量采用砖墙承重,必要时增加钢筋混凝土柱。
(4)层高:音体室、厨房层高5.7m.其余层高4.2m。
3.作业要求
(1)在平面图中,使用所提供的图例(见下表)绘出以下结构平面布置:
1)钢筋混凝土承重柱。
2)承重砖墙、非承重砖墙。
3)钢筋混凝土梁(屋面梁、过梁),上下重叠时应分别标明上、下梁。
4)钢筋混凝土预制板。
5)钢筋混凝土现浇板。
(2)图例不能表达者,可用文字说明。

详见图 4。
