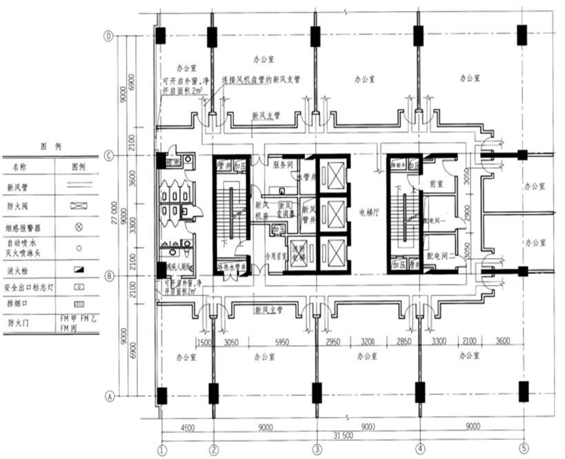
<p>任务描述 某超高层办公楼高区标准层的面积为1950㎡,下图为其局部平面,已布置有部分消防设施,根据现行规范、任务要求和图

分类: 建筑技术设计(作图题) 发布时间: 2023-11-02 23:59 浏览量: 0

任务描述 某超高层办公楼高区标准层的面积为1950㎡,下图为其局部平面,已布置有部分消防设施,根据现行规范、任务要求和图例,完成其余消防设施的布置。 任务要求 1.布置新风管的防火阀。 2.布置烟感报警器和自动喷水灭火喷淋头(办公室、走廊、电梯厅和楼梯间除外)。 3.在未满足要求的建筑核心筒部位补设消火栓。 4.布置安全出口标志灯。 5.布置走廊排烟口。 6.标注防火门及其防火等级。

参考作图提示