【试题要求】
1.任务说明
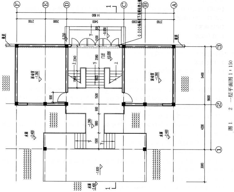
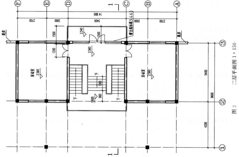
图1~图3为某滨水建筑全部架空于水面之上,按指定剖切线位置和构造要求绘制剖面图,剖面图应正确反映平面图所示关系。


2.构造要求
(1)结构:现浇钢筋混凝土结构。
(2)地面:素土夯实,120mm厚素混凝土,面铺地砖。
(3)楼面:亲水平台:120mm厚现浇钢筋混凝土楼板,面铺地砖,板底抹灰。
(4)屋面:120mm厚现浇钢筋混凝土屋面板,坡度为1:2,面贴屋面瓦,板底抹灰。屋面檐口处无檐沟和封檐板,平面图上屋檐标高为结构面标高。
(5)墙:240mm厚砌体墙,水泥砂浆面层。
(6)楼梯:120mm厚现浇钢筋混凝土板式楼梯,梯级截面均为260mm×160mm,上铺地砖,板底抹灰。
(7)梁:现浇钢筋混凝土梁,截面240mm×400mm(宽×高)。
(8)门:门洞口高均为2100mm。
(9)窗:三角形老虎窗的窗底标高见屋顶平面,其窗顶抵至屋面板底。其余窗与门同高,阳台处窗台标高为3.460m。
(10)栏杆:均为通透式金属栏杆。
(11)室外踏步:素土夯实,100mm厚素混凝土,面铺地砖。
(12)挡土墙:300mm厚钢筋混凝土。
3.任务要求
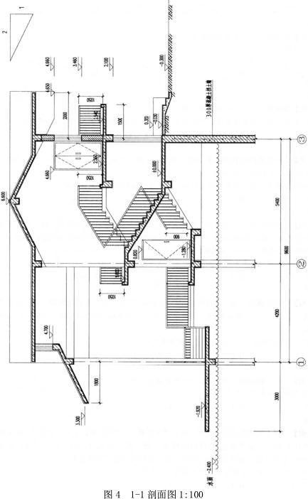
(1)绘制1-1剖面图,按图例绘出构造要求所列各项内容及建筑可见线。
(2)在1-1剖面图上标注楼地面、楼梯休息平台、窗口、檐口及屋脊的标高。
4.图例
【解析要点】
1.用铅笔线将各层的剖切符号连接起来
2.绘制剖切面投影线
(1)一层平面从左到右依次剖切部位:水面(标高为-2.400m),邻水平台(标高为-1.920m),水面上空,邻水平台(标高为-1.280m),平台临空栏杆,梯段(标高为+0.000~1.600m),门厅地坪(标高为±0.000m),③轴挡土墙及外墙和外墙上的门,室外台阶(标高为-0.030m),室外地坪(标高为-0.300m)。
(2)二层平面从左到右依次剖切部位:②轴左侧平台临空栏杆,休息平台楼面(标高为1.600m),梯段(标高为1.600~±0.000m),休息平台(标高为2.560m),休息平台临空栏杆,③轴外墙及外窗,露台(标高为2.540m),露台临空栏杆。
(3)屋顶平面从左到右依次剖切部位:檐口,坡屋面屋面板,老虎窗外墙外窗及屋面板,斜天沟,坡屋面,正脊,坡屋面板,斜天沟,老虎窗坡屋面板,檐口。
(4)题目中未规定设置基础具体要求,仅示意承重墙柱子基础局部即可。
(5)钢筋混凝土框架结构楼板处设置框架梁,屋面板处设置屋面梁。
(6)门洞口处均应设置过梁。
3.绘制看线投影线
(1)一层平面从左到右依次看到部位:①轴柱投影线,①轴右侧梯段投影线(标高为-1.920~-1.280m),邻水平台(标高为-1.280m)临空栏杆投影线,活动室转交外墙投影线,②轴右侧活动室外门投影线,梯段(标高为-1.280~±0.000m)投影线,③轴右侧室外台阶挡土墙投影线。
(2)二层平面从左到右依次看到部位:①轴柱投影线,休息平台(标高为1.600m)栏杆投影线,活动室转交外墙投影线,梯段(标高为1.600~2.560m)投影线,③轴左侧活动室外门投影线,③轴右侧室外露台栏杆投影线。
(3)屋面看线从左到右依次看到部位:檐口水平投影线,老虎窗侧檐口和正脊投影线,坡屋面正脊,侧檐口,斜天沟与水平檐口投影线,①~②轴间屋面框架梁投影线,⑥轴内墙坡屋面交线投影线。
4.完善建筑结构关系和建筑构造做法
(1)以下部位需按照题目要求分层绘制构造做法:楼面、屋面、外墙、楼梯、湖水挡土墙、室外踏步台阶。
(2)根据题目中对门窗的要求,确定门窗洞口高度。
5.注明楼地面、楼梯休息平台、窗口、檐口及屋脊的标高
详见图 4。
