【试题要求】
1.任务说明
图1~图4为某南方多层公共建筑出入口的局部平面图,按指定剖切线位置和构造要求绘制完善剖面图,剖面图应正确反映平面图所示关系。



2.构造要求
(1)结构:现浇钢筋混凝土结构。
(2)地面:素土夯实,150mm厚3:7灰土垫层,60mm厚细石混凝土,30mm厚干硬性水泥砂浆,20mm厚石材面层。
(3)楼面:100mm厚现浇钢筋混凝土楼板,楼面构造厚度90mm。
(4)屋面:100mm厚现浇钢筋混凝土屋面板,屋面构造厚度250mm。
(5)墙:300mm厚加气混凝土砌块填充墙。
(6)女儿墙:200mm厚钢筋混凝土,从结构面起计600mm高。
(7)梁:仅在墙下及板边设梁,梁截面600mm×300mm(高×宽)。
(8)门:门洞口高均为2100mm(含电梯门)。
(9)落地窗:窗洞顶与梁平齐,窗底落在楼板翻边顶。
(10)栏杆:均为金属栏杆。
(11)雨篷:金属雨篷,总厚度200mm。
3.任务要求
(1)绘制1-1剖面图,按图例绘出构造要求所列各项内容并补全建筑可见线。
(2)在1-1剖面图上标注楼地面、屋面、女儿墙顶、剖到的落地窗洞顶标高。
(3)在剖面图上按规范要求设置栏杆并标注⑥轴上栏杆的最小高度。
4.图例
【解析要点】
1.用铅笔线将各层的剖切符号连接起来
2.补全图形
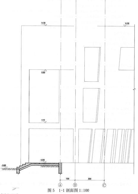
如图5,已经给绘出室外地坪、室外台阶及圆形混凝土墙及洞口投影线,考生在此基础上补全剖面即可。
(1)一层平面从下到上依次剖切部位:室外地坪(标高为-0.600m),室外台阶(标高为-0.020m),④轴外墙、大厅地面(标高为±0.000m)。
(2)二层平面从下到上依次剖切部位:雨篷(结构标高为3.760m),
轴间室外走廊(结构标高为3.900m)及临空栏杆,
轴外墙,
轴室内楼面(标高为4.200m),
轴内墙,大厅上空。
(3)三层平面从下到上依次剖切部位:
轴外墙及落地窗和护栏杆,
轴内楼面(标高为8.400m),
轴临空栏杆,大厅上空。
(4)四层平面从下到上依次剖切部位:
轴外墙及落地窗和护栏杆,
轴上侧1950mm走廊楼面(标高为12.600m),走廊上侧外墙、屋面(结构标高为12.510m)。
(5)屋顶平面从下到上依次剖切部位:
轴上侧1950mm范围内屋面板(标高为15.600m)及女儿墙。
(6)题目中未规定设置基础具体要求,仅示意承重墙柱子基础局部即可。
(7)钢筋混凝土框架结构楼板处设置框架梁,屋面板处设置屋面梁。
(8)门洞口处均应设置过梁。
3.绘制看线投影线
(1)一层平面从下到上依次看到部位:电梯间,储藏室门投影线。
(2)二层平面从下到上依次看到部位:电梯间门投影线,
轴外廊门投影线。
(3)三层平面从下到上依次看到部位:
轴外廊门雨篷投影线,电梯门投影线。
(4)四层平面从下到上依次看到部位:电梯门投影线。
(5)屋面看线从下到上依次看到部位:电梯机房投影线。
4.完善建筑结构关系和建筑构造做法
(1)以下部位需按照题目要求分层绘制构造做法:地面、楼面、屋面、女儿墙。
(2)根据题目中对门窗的要求,确定门窗洞口高度。
(3)设置防潮层。
5.注明楼地面、屋面、女儿墙顶、剖到的落地窗洞顶标高
详见图 6。

