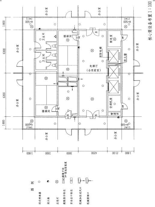
<p>设计任务 如图是一个高度超过100m的高层办公楼的核心筒平面图,根据规范要求布置以下内容: 1.闭式喷淋器; 2.消

分类: 建筑技术设计(作图题) 发布时间: 2023-11-02 23:59 浏览量: 0

设计任务 如图是一个高度超过100m的高层办公楼的核心筒平面图,根据规范要求布置以下内容: 1.闭式喷淋器; 2.消火栓; 3.应急灯; 4.疏散指示标志; 5.安全出口标志; 6.机械加压送风口:送风口净面积不小于1.3㎡; 7.机械排烟口:排烟口净面积不小于0.6㎡; 8.防火门应注明级别; 9.三个电梯中一个应布置为消防电梯并应进行相应分隔,并进行说明。

参考作图提示