首页
>
建筑技术设计(作图题)
> 题目详情
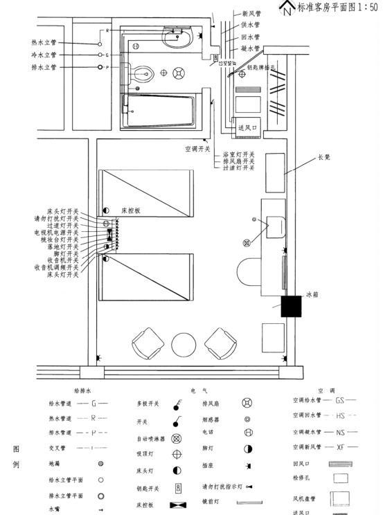
<p>设计任务 根据所提供的某一高级旅馆标准客房平面图,用给出的图例符号绘出其电气、给排水和空调系统的配置图。 <img a
分类: 建筑技术设计(作图题)
发布时间: 2023-11-02 23:59
浏览量: 0
设计任务 根据所提供的某一高级旅馆标准客房平面图,用给出的图例符号绘出其电气、给排水和空调系统的配置图。
参考作图提示
← 返回分类
返回首页 →
相关题目
<p>【试题要求】 1.任务说明 图示为4个地下室防水构造剖面节点(图1)。根据现行规范和国家标准图集的要求,不考虑保温,按
使用A型橡胶止水带的节点是:() A.节点①、节点② B.节点①、节点④ C.节点① D.节点②
使用B型橡胶止水带的节点是:() A.节点①、节点② B.节点②、节点④ C.节点① D.节点④
使用C型橡胶止水带的节点是:() A.节点①、节点④ B.节点②、节点④ C.节点② D.节点④
使用遇水膨胀止水条的节点是:() A.节点①、节点② B.节点②、节点③ C.节点① D.节点②
↑