【试题要求】
1.任务说明
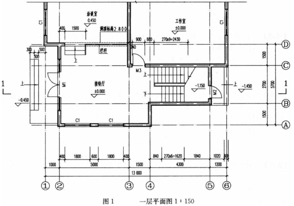
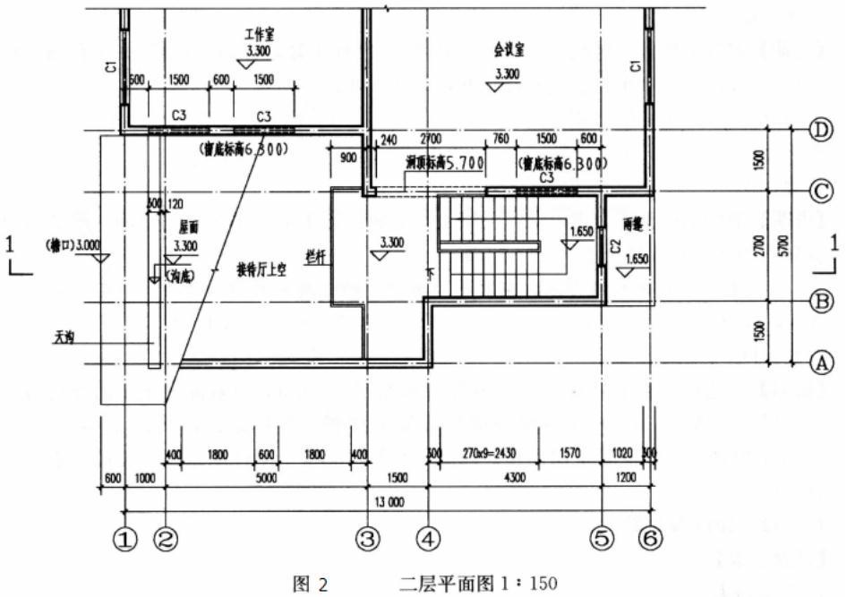
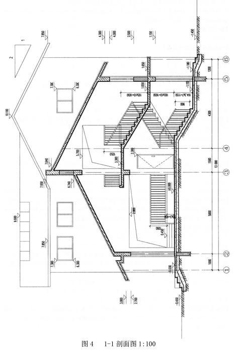
图1~图3为某工作室局部平面图,按指定剖切线位置和构造要求绘制剖面图。剖面图应正确反映平面图所示关系。除檐口和雨篷为结构标高外,其余均为建筑标高。


2.构造要求
(1)结构:砖混结构。
(2)地面:素土夯实,150mm厚碎石垫层,100mm厚素混凝土,面铺地砖。
(3)楼面:120mm厚现浇钢筋混凝土楼板,面铺地砖。
(4)屋面:120mm厚现浇钢筋混凝土屋面板,坡度1:2,面铺屋面瓦;檐口处无檐沟和封檐板。
(5)天沟:120mm厚现浇钢筋混凝土天沟,沟壁、沟底20mm厚防水砂浆面层。
(6)内、外墙:240mm厚砖墙,内墙为水泥砂浆抹灰,外墙面贴饰面砖。
(7)楼梯:现浇钢筋混凝土板式楼梯。
(8)梁:现浇钢筋混凝土梁,截面240mm×500mm(宽×高)。
(9)雨篷:120mm厚现浇钢筋混凝土板。
(10)栏杆:均为通透式栏杆。
(11)室外踏步:素土夯实,150mm厚碎石垫层,100mm厚素混凝土,水泥砂浆找平,面铺地砖。
3.任务要求
(1)按构造要求、图例和门窗表绘制1-1剖面图。
(2)在1-1剖面图上标注楼地面、楼梯休息平台的建筑标高,标注窗洞底、窗洞顶、檐口、屋脊、③轴屋面板顶的结构标高,标注栏杆高度。
4.提示
基础不需绘制,竖向栏杆可局部单线表示。
5.门窗表
6.图例

详见图 4。
