【试题要求】
1.任务描述
图1~图4为某山地四层连排别墅局部平面图,按指定的剖切线位置绘制剖面图。剖面应正确反映平面图中所示的尺寸及空间关系并满足构造要求。题中尺寸除标高为米外,其余均为毫米。



2.构造要求
(1)结构类型:240mm厚砌体墙承重,现浇钢筋混凝土楼板及楼梯。
(2)地坪:素土夯实,70mm厚碎石垫层,100mm厚C10混凝土,20mm厚水泥砂浆找平,上贴地砖,室外平台和踏步做法相同。
(3)楼面:120mm厚现浇钢筋混凝土楼板,20mm厚水泥砂浆找平后贴地砖。
(4)屋面:120mm厚现浇钢筋混凝土斜屋面板,25mm厚水泥砂浆找平,防水涂膜2mm厚,粘贴防水卷材,上贴25mm厚聚苯乙烯保温隔热板,40mm厚细石混凝土找平,内配φ6@500×500钢筋网,随贴瓦楞形面砖;120mm厚现浇钢筋混凝土平楼板,20mm厚1:2水泥砂浆找平,找坡层(最薄处30mm厚),25mm厚聚苯乙烯保温隔热板,高分子防水卷材,涂料保护层。
(5)外墙:240mm厚砖砌体,20mm厚抹灰,面涂涂料。
(6)内墙:240mm厚承重墙,120mm厚非承重墙,20mm厚抹灰,面涂乳胶漆。
(7)顶棚:120mm厚现浇钢筋混凝土板,20mm厚抹灰,面涂乳胶漆。
(8)梁:承重梁(包括圈梁)、门窗过梁全部为钢筋混凝土梁,尺寸为240mm×450mm及120mm×120mm。
(9)门:厨房、卫生间门高2000mm,其余门高至梁下。
(10)窗:C-1窗台高1400mm,C-2落地窗台高100mm,C-3窗台高1500mm,其余窗台高900mm,
所有窗上皮标高均同梁底。3.剖面要求
(1)绘制1:50剖面图。图中包括楼地面、屋面、内外墙、门窗、楼梯、梁等及有关可视线。
(2)注明檐口、屋面的结构标高及楼面、地面的建筑标高。
(3)注明外檐及有关门窗高度尺寸。
(4)剖面设计应符合相关规范要求。

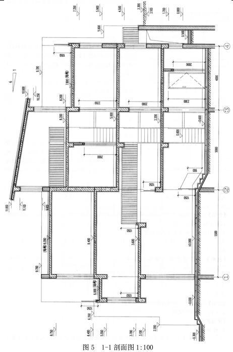
详见图 5。
