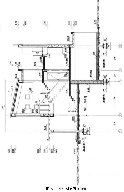
【试题要求】
1.任务说明
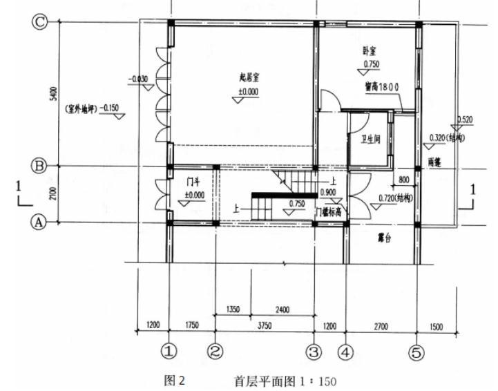
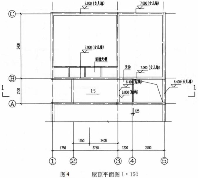
图1~图4为某住宅局部平面,按指定剖面线画出剖面图,剖面图应正确反映出平面图所示关系并满足构造要求。



2.构造要求
(1)结构类型:混合结构,混凝土空心砌块墙体,局部钢筋混凝土构造柱,钢筋混凝土楼板、屋面板。
(2)基础:混凝土条形基础,高300mm,宽700mm,基础埋深1000mm(自室外地坪计)。
(3)地面:车库:素土夯实,100mm厚灰土,120mm厚混凝土。住宅室外台阶:素土夯实,150mm厚灰土,120mm厚混凝土,20mm厚水泥砂浆,铺10mm厚地砖。
(4)楼面、露台:100mm厚钢筋混凝土楼板,20mm厚水泥砂浆,铺10mm厚地砖。
(5)平屋面、天沟、雨篷:100mm厚钢筋混凝土楼板,20mm厚找坡层,20mm厚水泥砂浆防水层。
(6)斜屋面:100mm厚钢筋混凝土楼板,150mm厚金属压型钢板(含檩条,保温厚度),坡度1:5。
(7)墙体:混凝土小型空心砌块,外墙250mm厚并居轴线中,内墙200(100)mm厚,实心砖挡土墙360mm厚,基础250mm厚。
(8)防水层、防潮层:在需设置防水处采用防水卷材,防潮层采用防水砂浆。
(9)梁:所有结构梁(包括门窗洞过梁)居轴线中,高500mm,宽250mm。
(10)楼梯:悬挑踏步板(踏步之间不连接),板厚80mm,踏步宽250mm,清水混凝土。
(11)门窗:门窗上皮标高一律同梁底。
3.任务要求
(1)画出1:50剖面图,图中包括基础、楼地面、屋面、内外墙、门窗、楼梯及栏杆并画可视部分。
(2)标注屋面(结构板)、楼地面、基础等部分标高。
4.图例

详见图 5。
