【试题要求】
1.任务描述
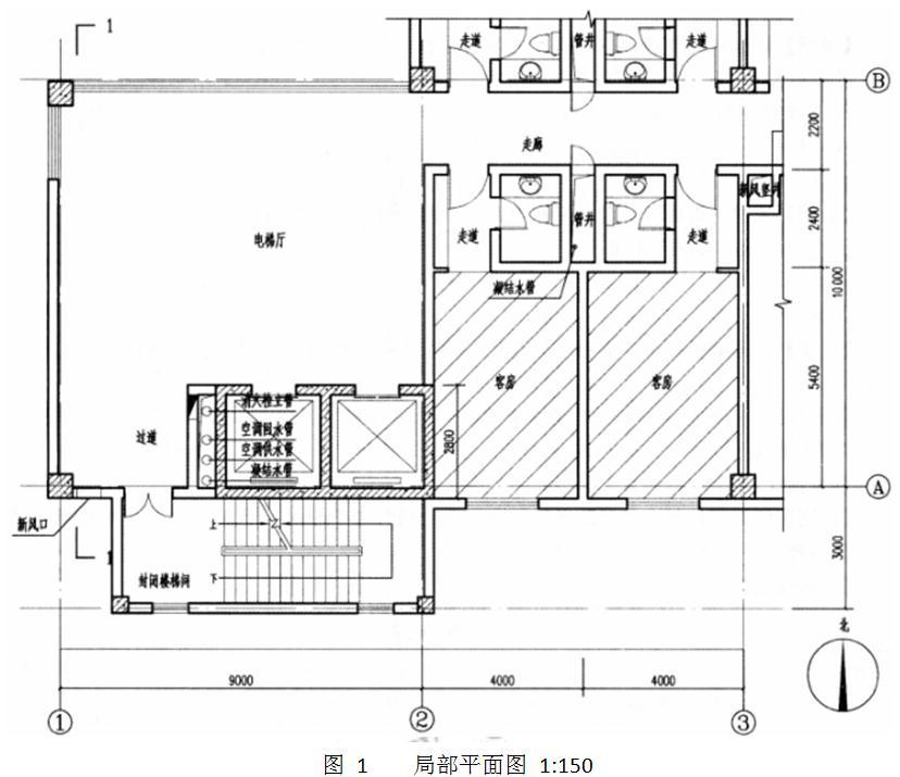
图1、图2为某宾馆(二类高层建筑)的局部平面及剖面图,除客房斜线部分不吊顶外,其余全部吊顶。按要求做出空调通风及部分消防系统的平面布置。

已知条件:
(1)空调通风部分。
1)客房采用风机盘管,新风通过走廊的新风竖井接入。
2)电梯厅采用新风处理机,用4个散流器均匀送风,送风直接由外墙新风口接入。
3)走廊仅提供新风。
(2)灭火系统部分。采用自动喷水灭火系统,客房采用边墙型扩展覆盖喷头,其他部位采用标准型喷头。
2.任务要求
(1)在平面图上按提供的图例做出布置图,包括:
1)布置空调系统。
2)布置卫生间排风系统。
3)在符合规范的前提下,按最少数量布置电梯厅、过道、走廊喷头(仅表示喷头)。
4)布置客房喷头(仅表示喷头)。
5)布置室内消火栓。
6)布置火灾应急照明灯及安全出口标志灯。
7)标注防火门及防火等级。
(2)根据作图,完成本题的作图选择题。
3.图例(见下表)

详见图 3。
