【试题要求】
1.任务说明
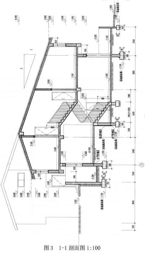
根据图1、图2所示某坡地住宅一、二层平面图(含屋面平面示意图),按指定的1-1剖线位置画出剖面图,剖面图必须能正确反映出平面图中所示的尺寸及空间关系,并符合构造要求。

2.构造要求
(1)结构类型:砖砌体承重,现浇钢筋混凝土楼板。
(2)室内外高差:详见图示。
(3)层高:一层3000mm,二层2400mm(楼面至外墙中轴线与屋面结构板面的交点)。
(4)基础:240mm砖砌体大放脚,C10混凝土680mm(宽)×340mm(高)条形基础;基础埋深:1200mm(室内地面下)。
(5)地面:素土分层夯实,100mm厚C10混凝土,20mm厚水泥砂浆找平,上贴地砖(平台做法同地面)。
(6)楼面:100mm厚钢筋混凝土现浇板,20mm厚水泥砂浆找平,上铺8mm厚复合木地板;卫生间铺贴地砖。
(7)屋面:二坡顶,坡度为1:3。100mm厚现浇钢筋混凝土斜屋面板,25mm厚水泥砂浆找平,防水涂膜2mm厚,粘贴防水卷材,上贴25mm厚聚苯乙烯保温隔热板,40mm厚细石混凝土找平层,内配φ6@500×500钢筋网,随贴瓦楞形面砖。挑檐500mm,自由落水。
(8)外墙:240mm厚砖砌体,20mm厚抹灰,面涂涂料。
(9)内墙:240mm承重墙,120mm厚非承重墙,20mm厚抹灰,面涂涂料。
(10)梁:全部为钢筋混凝土梁。承重梁(包括圈梁)为240mm(宽)×400mm(高)。门窗过梁为240mm(宽)×240mm(高)及120mm(宽)×120mm(高)。
(11)门:门高均为2100mm。入户门宽1000mm.房门宽900mm,卫生间、储物间门宽700mm,平台推拉门宽3000mm。
(12)窗:一层窗高1500mm,二层窗高1100mm,窗台高900mm,高窗高500mm,窗台高1500mm。
(13)楼梯:构造做法同楼面。挡土墙为240mm厚砖砌体,基础为C10混凝土500mm(宽)×300mm(高),埋深800mm(室内地面下)。
(14)栏板:砖砌体120mm厚,高1000mm,混凝土压顶120mm(宽)×120mm(高),基础C10混凝土400mm(宽)×250mm(高),埋深500mm(室外地面下)。
(15)挡土墙:水泥砂浆砌条石,厚300mm,挡土部分厚500mm,基础C10混凝土750mm(宽)×300mm(高),埋深800mm(室外地面下)。
(16)防潮层:采用水泥砂浆。
(17)散水:素土夯实,100mm厚C10混凝土,20mm厚水泥砂浆找平。
3.作图要求
(1)画出1:50剖面图。它应包括基础、楼地面、屋面、内外墙、门窗、楼梯、梁、防潮层及可视线等。
(2)注明室内、外各层标高,屋脊板面标高。
(3)注明外沿及有关门窗高度尺寸。
4.图例

详见图 3。
