【试题要求】
1.任务描述
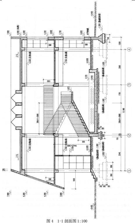
图示某小型展览馆门厅局部一、二层及屋顶平面图(见详图1~图3),按指定的剖面线位置画出剖面图,剖面图必须准确地反映出平面图中所表示的尺寸及空间关系,并符合提出的设计任务与构造要求。


2.设计任务与构造要求
(1)结构类型:现浇钢筋混凝土框架。
(2)冰冻深度:无冰冻。
(3)地下水深度:不考虑。
(4)室内外高差:450mm。
(5)砖墙大放脚基础:740mm宽、底标高-1.200m,混凝土垫层厚200mm。
(6)楼梯梯段钢筋混凝土条形基础:底板宽600mm、底板厚200mm,底标高-1.000m;混凝土垫层厚100mm。
(7)钢筋混凝土柱独立基础:1700mm×1700mm、二阶、每阶高350m、底标高-1.600m;混凝土垫层厚100mm。
(8)柱:各层断面均为350mm×350mm。
(9)地坪:素土夯实,80mm厚C10混凝土垫层,30mm厚1:4干硬性水泥砂浆结合层,铺20mm厚花岗石板,灌稀水泥浆擦缝。
(10)水池:自防水C20钢筋混凝土,壁厚300mm,底板厚200mm;20mm厚1:2.5水泥砂浆结合层,贴5mm厚面砖。
(11)楼面:80mm厚现浇钢筋混凝土板,20mm厚1:4干硬性水泥砂浆结合层,铺10mm厚地砖,干水泥擦缝。
(12)梁:楼面、屋面断面均为250mm(宽)×400mm(高)。
(13)屋面:80mm厚现浇钢筋混凝土平板,1:6水泥焦渣(最薄处30mm厚)、找2%坡度,铺80mm厚加气混凝土保温层,20mm厚1:2.5水泥砂浆找平层,表面刷2mm厚聚氨酯防水涂膜及其涂膜保护层。
(14)外墙:240mm厚砖墙,二层的斜墙面为80mm厚钢筋混凝土斜板;外墙面均用20mm厚1:2水泥砂浆结合层,贴6mm厚面砖。
(15)吊顶:一、二层轻钢龙骨石膏板吊顶,吊顶高度均为2700mm。
(16)门窗:一层:入口门高2700mm(门扇高2100mm);外窗高2100mm、窗台高600mm。二层:外窗及斜窗垂直高2100mm,窗台高600mm。
3.剖面要求
(1)画出1:50剖面图,剖面应表示出基础、楼地面、屋顶采光窗、外墙、楼梯、吊顶、散水、台阶、防潮层等及各可见线。
(2)注明标高、屋面坡度与关键尺寸。
4.图例

详见图 4。
