【试题要求】
1.任务描述
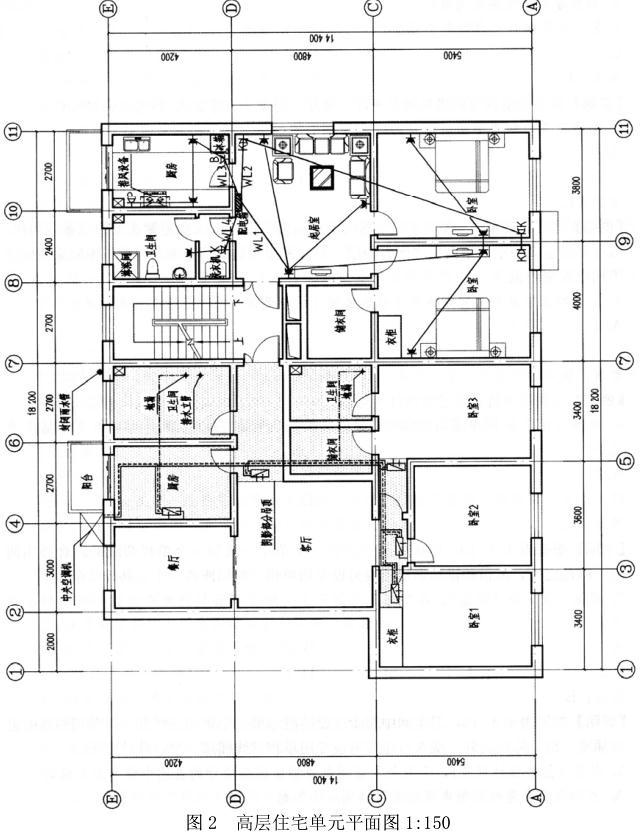
图1为某住宅的单元平面。
(1)左户采用无新风的水系统风冷热泵户式空调(俗称“小型中央空调系统”),卫生间、厨房、储藏不考虑空调。户式空调室外主机位置已给定,优先选用侧送下回空调室内机。侧送侧回空调室内机已预留墙面洞口。图中仅阴影部分设吊顶,空调室内机及管线安装在吊顶空间内。要求按下述制图要求绘制左户空调布置图。
(2)右户采用分体空调,配电箱及空调电源插座位置已给定,要求按《住宅设计规范》的最低要求绘制右户插座平面布置图。
以上布置均应满足相关规范要求。
参照《住宅设计规范》的要求,电源插座的设置数量不应少于表1的规定。表1电源插座设置数量
2.任务要求
(1)左户:用提供的配件图例按以下要求绘制空调布置图:
1)布置空调室内机。
2)布置空调给水管。
3)布置空调回水管。
4)布置空调冷凝水管。
(2)右户:用提供的配件图例按以下要求绘制插座平面布置图(储藏、阳台不需布置):
1)绘出所有电源插座位置(空调插座已给定);
2)绘出所有电源插座回路并编号(回路均引自配电箱)。
3.配件图例(表2、表3)


详见图 2。
