【试题要求】
1.任务描述
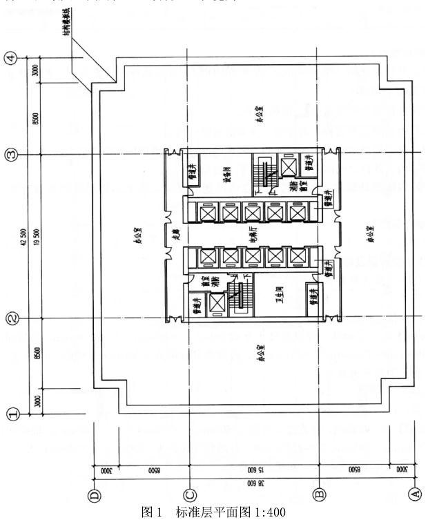
图1为某35层建筑的标准层平面图,层高3.9m,采用钢筋混凝土筒中筒结构。不考虑抗震要求,外筒壁厚1000mm,内筒壁厚600mm。设计应在满足规范要求(外筒柱距不大于4000mm)的前提下,外筒的柱距应最大,四周柱距必须统一,柱宽为1400mm。
2.任务要求
按图例在图1中:
(1)布置外筒的柱,并注明柱距;
(2)布置外筒的梁(裙梁);
(3)布置内筒及内部的剪力墙:
(4)布置内筒的连梁;
(5)布置内、外筒之间的梁;
(6)布置内、外筒的角柱。
3.图例(见下表)

详图 2。
