【试题要求】
1.任务描述
图1为一山区希望小学的平面图,砖墙承重,采用下面提供的木屋架、木斜梁、木檩条按立面面屋脊节点图要求(图2、图3),在图1上绘出四坡屋面木结构布置图。要求结构合理,并符合任务书与规范的要求。本地区无抗震要求,其地基能承受正常荷载。


2.设计任务说明
(1)根据结构要求可增加必要的砖墩,不允许在房间内加柱。
(2)屋面做法为木檩条,上做瓦屋面。木檩条跨度不允许超过4500mm。水平间距900mm,屋面坡度1:2。
(3)木屋架采用下面提供的两种类型(图4)
1)跨度超过6000mm小于12000mm者用木屋架。
2)跨度不超过6000mm者应采用简支的木斜梁。
3)应利用砖墙支承檩条代替木屋架。
4)木檩条跨度不允许超过4500mm,屋脊处设一根檩条。
5)走廊处非木屋架部分应用钢筋混凝土梁,上砌砖墙支承檩条。
6)挑檐宽900mm,挑檐处加挑檐木,以搁置檐檩。
7)屋架支承点处的内砖墙应增加砖墩。
3.作业要求
在图1上,使用所提供的图例,画出以下结构构件,并标明代号:
(1)屋面屋架布置;
(2)屋面木斜梁布置(只布置①~②轴、
轴)。
(3)屋面檩条布置(只布置①~②轴)。
(4)走廊顶上混凝土梁上面砌砖支承檩条(门窗过梁不必表示)(只布置走廊处)。
(5)挑檐木布置(只布置
轴)。
(6)支承檩条的砖墙,不包括外墙(只布置⑦~?轴用图例表示)。
(7)增加的砖墩。
4.构件图例与代号表(见下表)

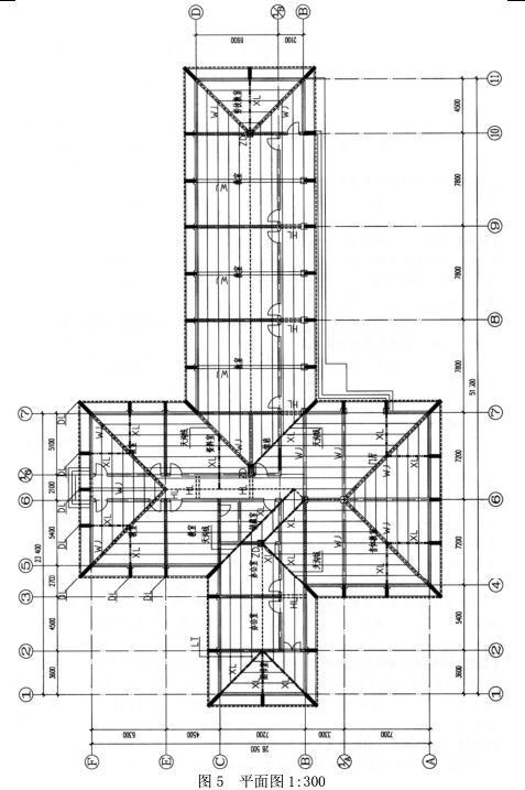
详见图 5。
