【试题要求】
1.任务描述
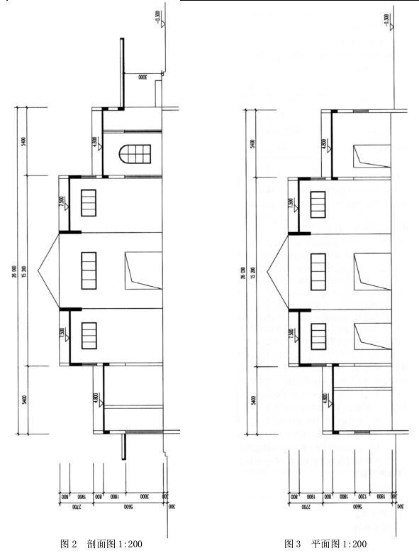
图1~图3为某南方地区展览馆建筑平剖面图,要求绘出结构及承载系统。设计应结构合理,并符合任务书与规范的要求,本地区无抗震设计要求,其基础系统能承受正常荷载。
本工程平面为正八角形,四周展厅的屋面标高均相同,窗高相同。中央大厅为无柱大空间。剖面图仅表示空间关系,未表示结构构件。


2.任务要求
(1)展览馆的屋顶结构应包括钢筋混凝土预制屋面板与钢筋混凝土现浇屋面板,预制钢筋混凝土屋面板必须符合宽600mm的规格,长度不得超过6m,在屋面中央有方锥形钢架的玻璃采光顶棚。
(2)主入口雨篷从墙面出挑5.5m,下方考虑停车。
(3)结构布置应尽量采用砖墙承重,必要时增加砖柱或钢筋混凝土柱。屋面板应尽量采用预制钢筋混凝土板,局部可采用现浇板。
3.作业要求
(1)在下边的平面图上(图4),使用所提供的图例画出以下结构构件:
1)钢筋混凝土预制屋面板;
2)钢筋混凝土现浇屋面板;
3)钢筋混凝土梁、过梁(上下重叠时应表明上、下);
4)承重钢筋混凝土柱;
5)承重砖壁柱。
(2)图例不能表达者,可用文字说明。
(3)图例如下(详见表)

详见图 5。
