【试题要求】
1.任务说明
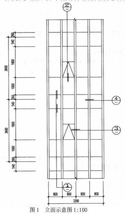
下图为某多层公共建筑玻璃幕墙的局部立面示意图(图1、图2),幕墙形式为竖明横隐框架式,要求按适当做法与以下制图要求绘制节点构造详图(在图3、图4上作答)。




2.制图要求
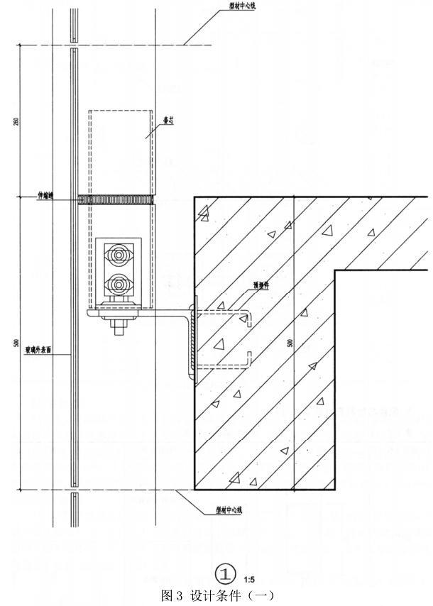
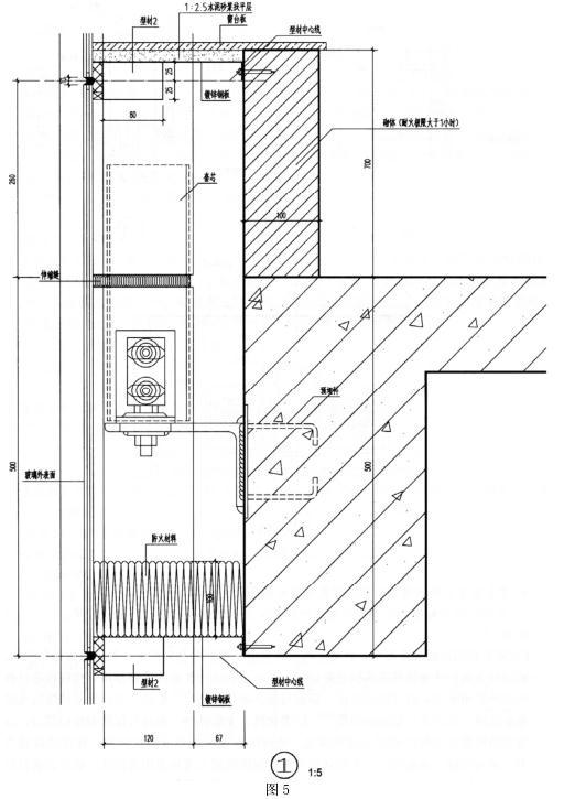
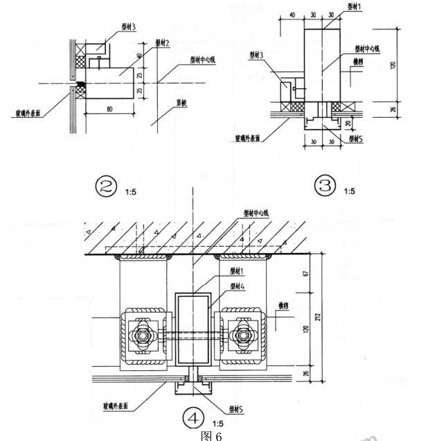
(1)各节点构造详图中型材中心线、中空玻璃位置、幕墙与建筑主体结构的连接构造已给定,按表1选用合适的配件及材料,完成①~④各节点的构造详图,可以采用简图绘制,注明所选配件与材料名称及必要的尺寸。
(2)明框部分中空玻璃与铝合金型材间采用非现注式密闭材料。
(3)楼层间要满足防火要求。
(4)不需要表示保温和装饰面层做法。

详见图 5、图 6。

