【试题要求】
1.任务要求
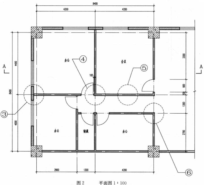
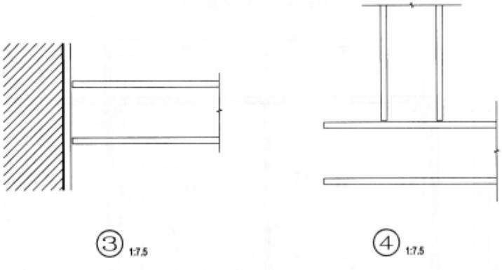
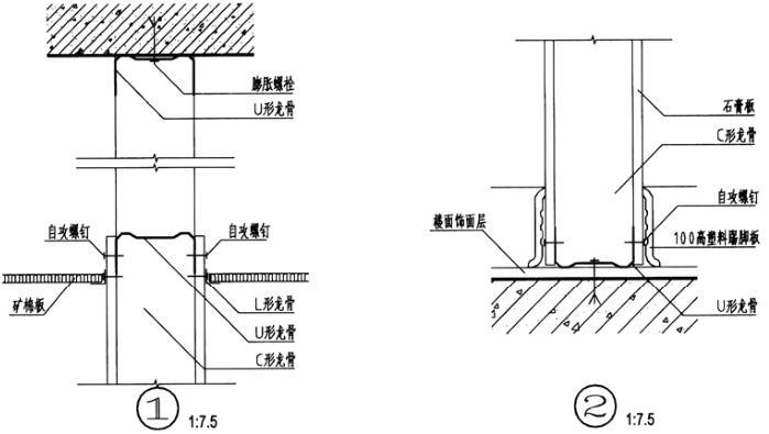
使用下面提供的基本构件,按下列剖面与平面所示的①~⑥节点(图1、图2),绘出构造详图。(在图3上作答,由于排版需要,本题比例由真题的1:5修改为1:7.5),并注明材料与构件名称。




2.任务说明
隔墙构造仅选用所提供的轻钢龙骨及配件,不考虑其他类型的龙骨及配件,面层为纸面石膏板,不考虑墙体的隔声要求。
(1)外墙做法:200mm厚空心砖墙,25mm厚水泥砂浆粉面。
(2)楼面做法:钢筋混凝土上抹30mm厚水泥砂浆。
(3)内门:木门框。
(4)天花吊顶:明骨矿棉板。
3.基本构件


详见图 4。


【评分标准】

