首页
>
建筑技术设计(作图题)
> 题目详情
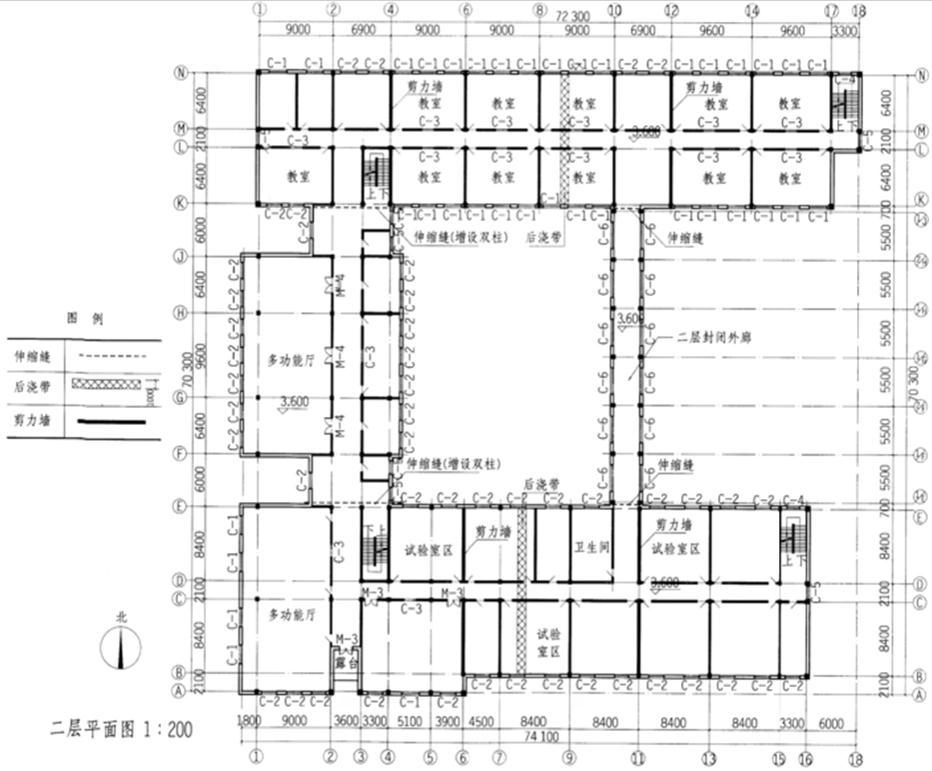
<p>任务说明 某多层教学楼,框架结构,柱网布置如图,其中二层建筑面积3267㎡。要求安全、合理、经济地布置伸缩缝(抗震缝)、
分类: 建筑技术设计(作图题)
发布时间: 2023-11-03 00:00
浏览量: 1
任务说明 某多层教学楼,框架结构,柱网布置如图,其中二层建筑面积3267㎡。要求安全、合理、经济地布置伸缩缝(抗震缝)、后浇带、剪力墙(抗震墙)。
参考作图提示
← 返回分类
返回首页 →
相关题目
<p>【试题要求】 1.任务说明 图示为4个地下室防水构造剖面节点(图1)。根据现行规范和国家标准图集的要求,不考虑保温,按
使用A型橡胶止水带的节点是:() A.节点①、节点② B.节点①、节点④ C.节点① D.节点②
使用B型橡胶止水带的节点是:() A.节点①、节点② B.节点②、节点④ C.节点① D.节点④
使用C型橡胶止水带的节点是:() A.节点①、节点④ B.节点②、节点④ C.节点② D.节点④
使用遇水膨胀止水条的节点是:() A.节点①、节点② B.节点②、节点③ C.节点① D.节点②
↑