<p>设计任务 坡屋木顶结构设计 已知:某砖混结构建筑平面图,屋面为檩式等坡四坡顶形式。根据给出的条件设计屋顶结构。不考虑门

分类: 建筑技术设计(作图题) 发布时间: 2023-11-03 00:00 浏览量: 0

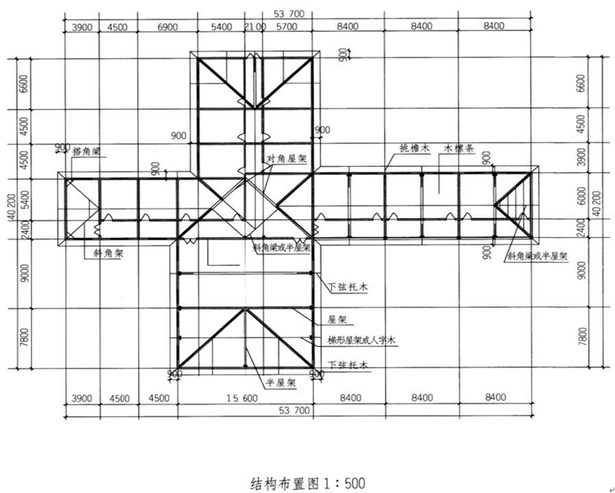
设计任务 坡屋木顶结构设计 已知:某砖混结构建筑平面图,屋面为檩式等坡四坡顶形式。根据给出的条件设计屋顶结构。不考虑门窗过梁等。 1.斜角梁的跨度大于6m时,应采用半屋架。 2.木檩条的跨度决定屋架的间距,可采用山墙搁檩。 走廊上方可用过梁承担上部砖墙。 3.檐檩可通过挑檐木承托。檩条的间距为900mm。 4.画出需要加强的砖墙部位。

参考作图提示