任务描述
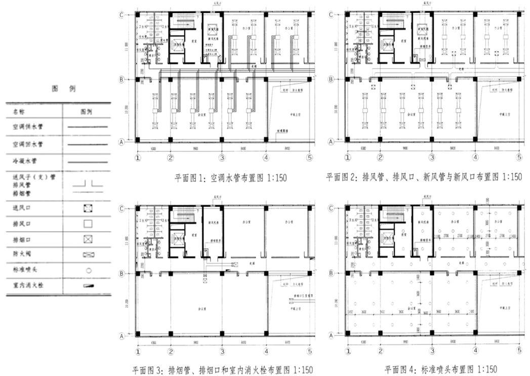
图为某九层二类高层办公楼建筑局部平面图(同一部位)。根据现行规范、任务条件、任务要求和图例,根据技术经济合理的原则,完成空调通风及消防系统平面布置。
任务条件
1.建筑层高均为4.0m,各楼层窗可开启面积为1.0㎡。
2.中庭一至九层通高,设为独立防火分区,以特殊防火卷帘与其他区域分隔。
3.办公室、会议室采用风机盘管加新风系统。
4.走廊仅提供新风。
5.自动喷水灭火系统采用标准喷头。
任务要求
在指定平面图的①-⑤轴范围内完成以下布置:
1.平面图1:布置会议室风机盘管的空调水管系统。
2.平面图2:布置排风管和排风口;布置新风管和新风口,新风由新风机房引入。
3.平面图3:补充布置排烟管、排烟口和室内消火栓。
4.平面图4:布置标准喷头。
5.根据作图结果完成下题的选择题作答。


参考作图提示
