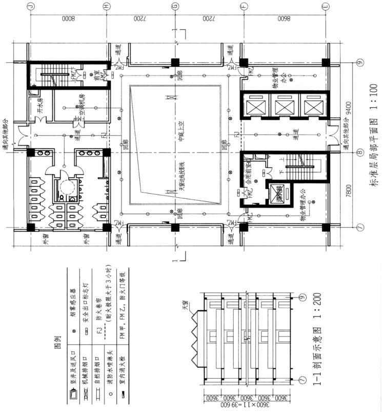
任务说明
某中庭高度超过32m的二类高层办公建筑的局部平面及剖面如图所示,回廊与中庭之间不设防火分隔,中庭叠加面积超过4000㎡,图示范围内所有墙体均为非防火墙,中庭顶部设采光天窗。按照现行国家规范要求和设施最经济合理的原则在平面图上作出该部分消防平面布置图。
任务要求
正确选择图例并在平面图中⑦-⑨轴与轴范围内布置下列内容:防排烟部分:
在应设加压送风的部位绘出竖井及送风口(要求每层设置加压送风口,每个竖井面积不小于
0.5㎡)。
示意中庭顶部排烟设施。灭火系统部分:
布置自动喷水灭火系统的消防水喷淋头。
布置室内消火栓(卫生间、空调机房、开水房、通道内不布置)。报警部分:
布置烟雾感应器。疏散部分:
布置安全出口标志灯。
设置防火卷帘并标注防火门等级(图中门的数量和位置不得改变)。


参考作图提示
