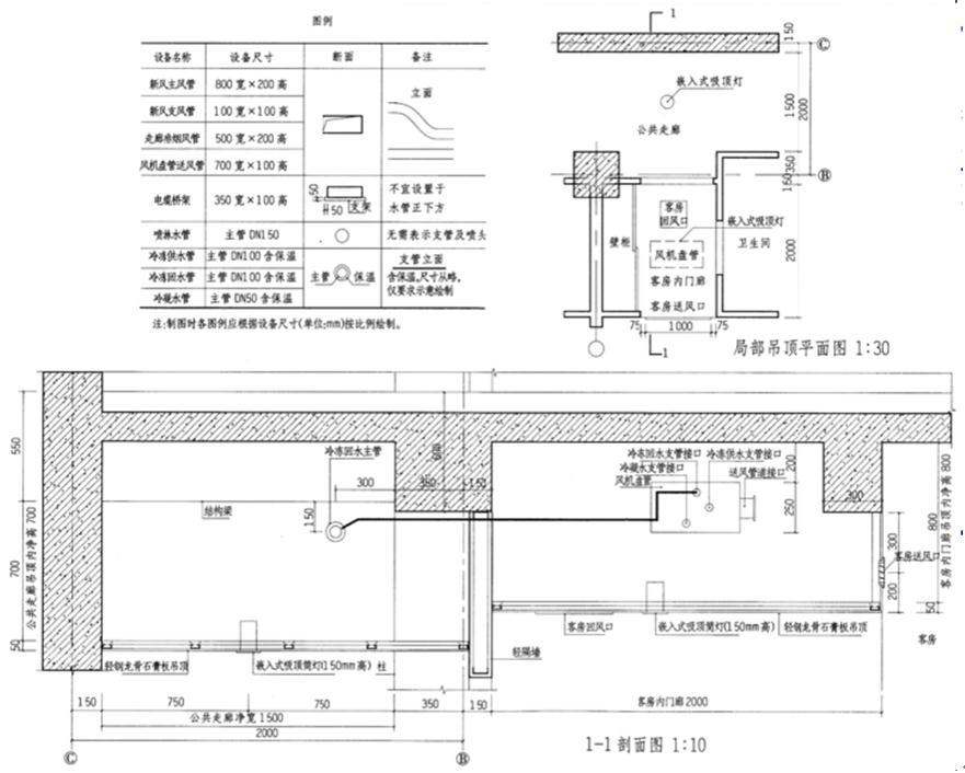
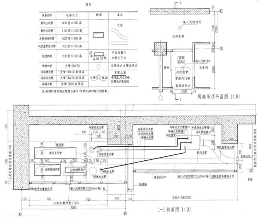
任务描述
某宾馆单面公共走廊、客房内门廊的局部吊顶平面如图,客房采用常规卧式风机盘管加新风的供冷空调系统。要求在1-1剖面图中按照提供的图例进行合理的管线综合布置。
任务要求
1.在1-1剖面图单面公共走廊吊顶内按比例布置新风主风管、走廊排烟风管、电缆桥架、喷淋水主管、冷冻供水主管、冷凝水主管,并标注前述设备名称、间距。
2.在1-1剖面图客房内门廊吊顶内按比例布置新风支风管、风机盘管送风管、冷冻供水支管、冷凝水支管,表示前述设备与公共走廊吊顶内设备以及客房送风口的连接关系,并注出名称。
布置要求
风管、电缆桥架、结构构件、吊顶下皮相互之间的最小净距为100mm。
水管主管应集中排列,水管主管之间,水管主管与风管、电缆桥架、结构构件之间的最小净距为50mm。
所有风管、水管、电缆桥架均不得穿过结构构件。无需表示设备吊挂构件。
电缆桥架不宜设置于水管正下方。新风应直接送入客房内。


参考做图提示
