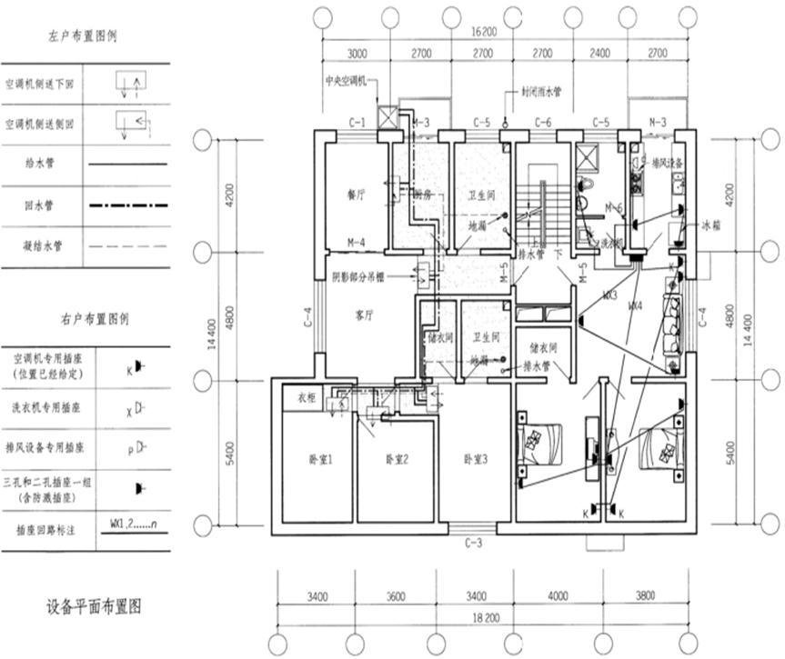
任务说明
如图所示的两个住宅平面,左户布置无新风小型中央空调系统,阴影部分为吊棚,采用室外中央空调机,室内空调机分侧送下回和侧送侧回空调机,优先采用侧送下回。右户结合已注明房间名称和住宅设计规范的要求布置插座及连线。
作图要求
1.选用所给图例在左户平面中布置室内空调机,吊棚内布置给水管、回水管和凝结水管。
2.选用所给图例在右户平面中按照住宅设计规范的要求布置插座及其连线并标注插座回路,WX1,2,…,n,共几条回路,空调机专用插座位置已经给定,插座电源均由客厅内的配电箱引出。


参考作图提示
