建筑结构
任务描述:
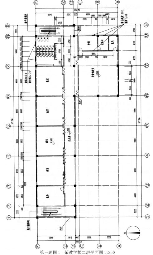
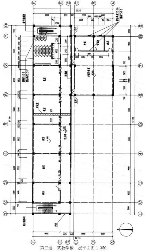
南方某小学教学楼建于7度抗震设防区,采用现浇钢筋混凝土框架结构,图1为其二层平面,根据现行规范,任务条件,任务要求和图例,按技术经济合理的原则,在图上完成二层平面结构的抗震设计内容。
任务条件:
●建筑层数与层高:
●框架柱截面尺寸均为600mm×600mm。
●框架梁高为跨度的1/10,且轴间框架梁高度不应大于900mm。
●填充墙为砌体,墙厚200mm。
●建筑门洞高度均为2500mm,双扇门洞宽1500mm,单扇门宽度1000mm。
●除注明外,外窗高度均为2600mm,窗台高度1000mm。
任务要求:
●完善框架柱布置,使框架结构体系满足小学抗震设防乙类的要求。
●布置防震缝,使本建筑形成两个平面及竖向均规则的抗侧力结构单元。
●布置后浇带,不再设置除防震缝外的变形缝。
●布置水平系梁:,在墙高超过4.0m的填充墙半高位置或宽度大于2000的窗洞顶处布置截面为200×300的钢筋混凝土水平系梁(梁高应满足跨度1/20的要求)。
●布置构造柱:,在水平系梁两端无法支撑于结构柱的位置,长度超过600mm的墙体自由端[注]以及墙体交接处,布置200mm×200mm的构造柱,构造柱的布置应满足水平系梁梁高的要求。
●根据作图结构,完成作图选择题的作答。


【参考答案】
