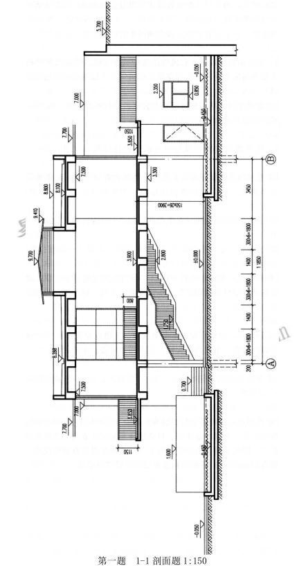
建筑剖面
任务说明:
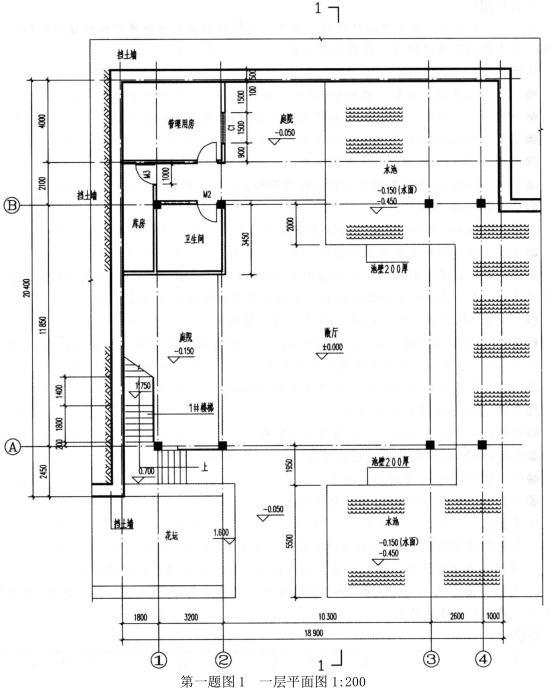
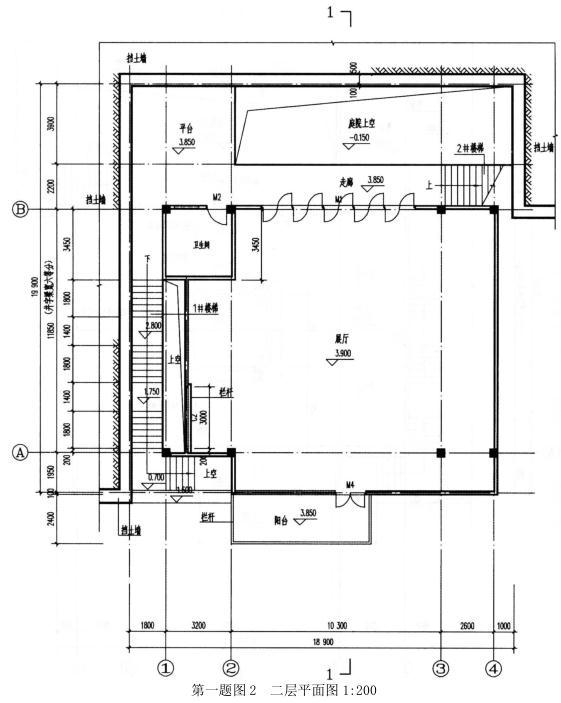
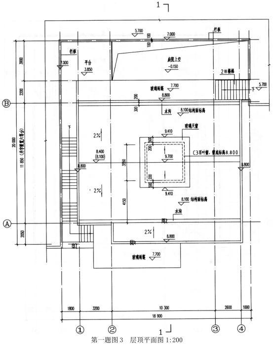
图1~图3为南方某坡地园林建筑平面图,按指定的剖切线位置和构造要求绘制1-1剖面图,剖面图应正确反映出平面图所示关系。
构造要求:
●结构:现浇钢筋混凝土框架结构。
●地坪:素土夯实,100mm厚碎石垫层,120mm厚素混凝土。
●楼板:120mm厚现浇钢筋混凝土板。
●屋面:120mm厚现浇钢筋混凝土板,女儿墙顶标高8.800m。
●阳台:150mm厚现浇钢筋混凝土板式阳台。
●墙:200mm厚砌体。
●柱:400mm×400mm现浇钢筋混凝土。
●楼梯:现浇钢筋混凝土板式楼梯。
●梁:现浇钢筋混凝土梁,梁截面均为600mm×300mm(高×宽);展厅的楼面及屋面采用井字梁,
轴间井字梁六等分,屋面天窗开口范围内不设梁。
●门:除M3门高2400mm外,其余门高平梁底。
●窗:C1窗台高900mm,窗高2400mm;C2窗为落地窗,窗高平梁底;C3为百叶高窗,窗台标高8.800m,窗高与玻璃天窗底平齐。
●天窗:夹胶玻璃采光天长,构造总厚度50mm。
●栏板:200mm厚钢筋混凝土。
●栏杆:栏杆除标注处均为金属通透式栏杆。
●雨篷:50mm厚钢构夹胶玻璃雨篷。
●挡土墙:600mm厚钢筋混凝土。
●水池底、壁板:200mm厚钢筋混凝土。
任务要求:
1.按照构造要求绘制1-1剖面图在图4上作答。
2.在剖面图上标注楼地面、天窗、楼梯休息平台、女儿墙及屋面的标高。
3.根据作图结果,先完成作图选择题的作答。
图例:





【参考答案】
