建筑结构(结构构件布置)
任务描述:
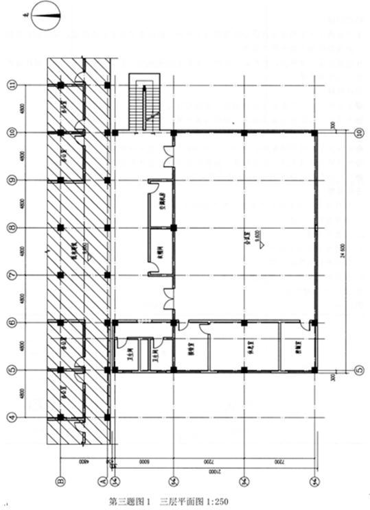
第三题图1阴影部分为抗震设防烈度为6度地区的既有多层办公楼局部,现需在其南侧增建三层钢筋混凝土结构的会议中心。
在经济合理的前提下,按照设计条件、任务要求及图例,在第三题图1上完成增建建筑三层楼面的结构布置。
设计条件:
●会议中心二、三层平面布局相同,层高均为4.8m。
●会议中心墙体均为砌体墙,应由结构梁支承。
●会议中心结构梁均采用普通的钢筋混凝土梁,梁高不大于800mm,正交布置。
●会议室结构梁间距控制在2000~3000mm之间,且双向相等。
●室外楼梯段及周边不设结构梁,楼梯平台中间不设结构梁。
●卫生间需结构降板300mm以满足同层排水要求。
任务要求:
1.以数量最少的原则补充布置必要的结构柱。
2.布置结构主、次梁。
3.布置变形缝。
4.布置室外楼梯的结构梁。
5.按图例绘制降板区域。
6.根据作图结果,先完成作图选择的作答。


【参考答案】
