建筑剖面
任务描述:
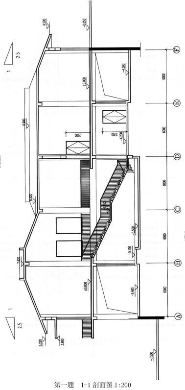
第一题图1~第一题图3为某坡地建筑平面图,按指定剖切线位置和构造要求绘制1-1剖面图,剖面图应正确反映平面图所示关系。
构造要求:
●结构:现浇钢筋混凝土框架结构。
●柱:600mm×600mm现浇钢筋混凝土柱。
●梁:现浇钢筋混凝土梁,600mm×300mm(宽×高)。
●墙:内外墙均为300mm厚砌体,挡土墙为300mm厚钢筋混凝土。
●坡屋面:200mm厚钢筋混凝土屋面板、上铺瓦屋面。屋面坡度1:2.5。屋面挑檐无天沟和封檐板。
●平屋面:100mm厚现浇钢筋混凝土板,面层构造150mm厚。
●楼面:200mm厚现浇钢筋混凝土板,面层构造100mm厚。
●楼梯:现浇钢筋混凝土板式楼梯,200mm厚现浇钢筋混凝土板,面层构造50mm厚,梯级为300mm×150mm(宽×高)。
●阳台、挑台、雨篷:板式结构,200mm厚现浇钢筋混凝土板,阳台面层构造50mm,雨篷板底齐门上口。
●室内外地面:素土夯实,面层构造200mm厚。
●门:M-1门高2700mm,M-2门高3900mm,M-3门高3300mm。
●窗:C-1、C-2落地窗,窗高至结构梁底;C-3窗台高900mm,窗高3000mm。
●栏杆:均为通透式金属栏杆。
●水池:池底及池壁均为200mm厚钢筋混凝土。任务要求:
1.绘制1-1剖面图,按图例绘出构造要求所列各项内容及建筑可见线。
2.在1-1剖面上标注楼地面、楼梯休息平台标高,檐口、屋脊及屋顶平面图中A点的结构面标高。
3.根据作图结果,先完成作图选择题的作答。





【参考答案】
