建筑设备(空调系统及送排风系统布置)
任务描述:
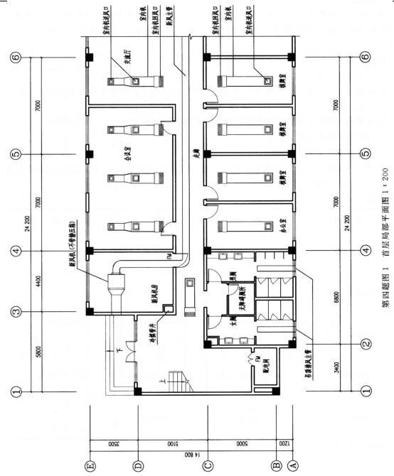
第四题图1为南方某社区中心的首层局部平面,室内除配电间外,均设置吊顶,空调采用多联机系统。根据现行规范、任务要求和图例。合理完善此部分空调、送排风系统的布置。
任务要求:
1.布置新风支管、对应连接每台室内机。
2.布置水平冷媒管,在冷媒管井内布置冷媒竖管,满足新风系统和室内空调系统的不同热工工况。
3.布置配电间的排风扇和进风阀,完善卫生间的排风系统。
4.布置防火阀和风管消声器。
5.布置风管防雨百叶。
6.根据作图结果,先完成作图选择的作答。
图例:


【参考答案】
