建筑设备
任务描述:
图1~图4均为某9层二类高层办公楼的顶层局部平面图(同一部位),根据现行规范、任务条件、任务要求和图例,根据技术经济合理的原则,完成空调通风及消防系统平面布置。
任务条件:
●建筑层高均为4.0m,各樘外窗可开启面积均为1.0㎡。
●中庭6~9层通高,为独立防火分区,以特级防火卷帘与其他区域分隔。
●办公室、会议室采用风机盘管加新风系统。
●走廊仅提供新风。
●自动喷水灭火系统采用标准喷头。任务要求:
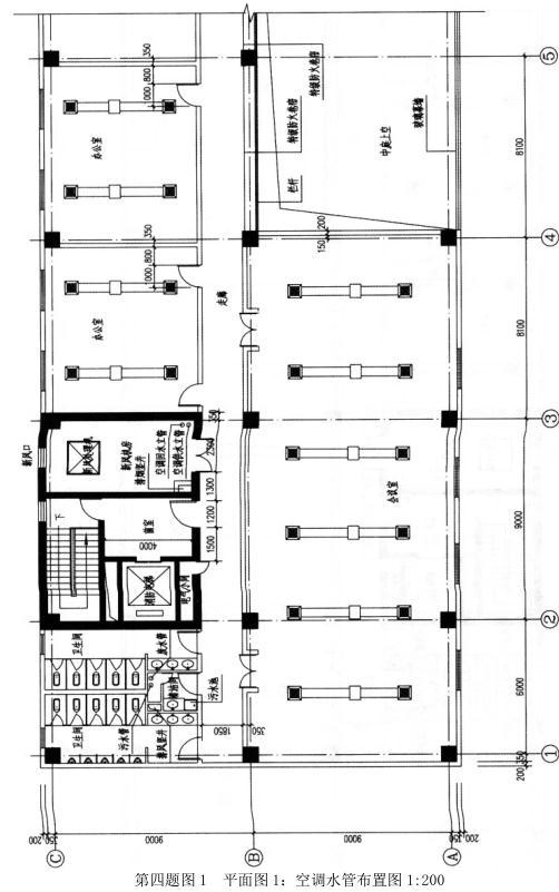
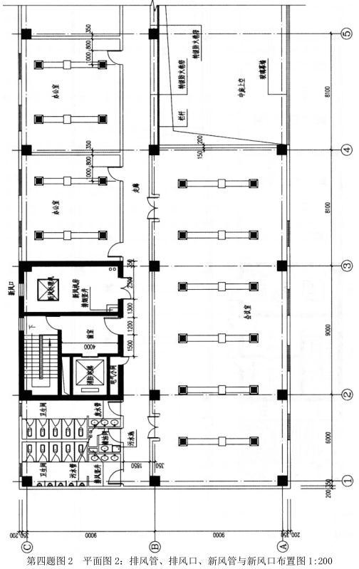
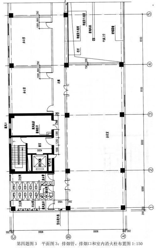
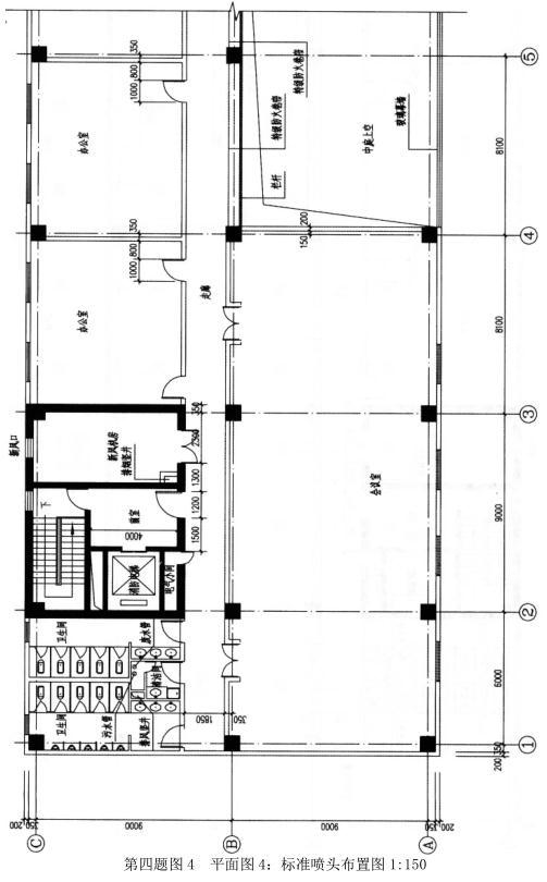
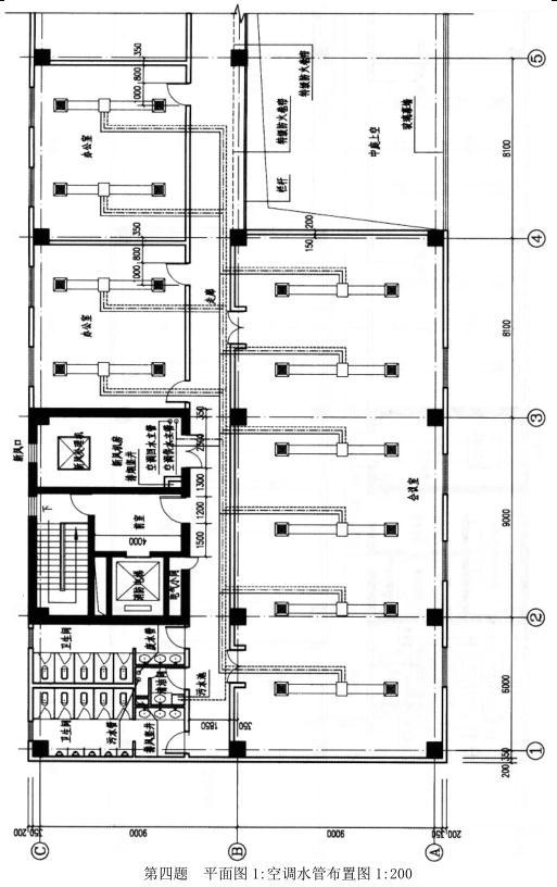
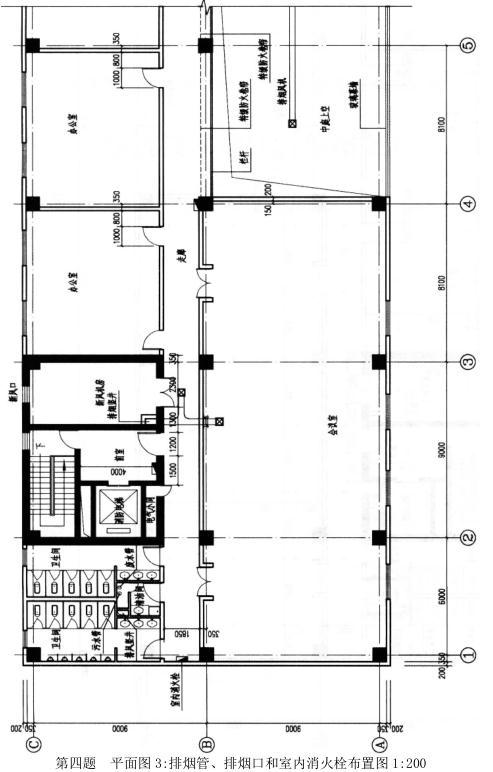
在指定平面图的①~⑤轴范围内完成以下布置:
1.平面图1:布置会议室风机盘管的空调水管系统。
2.平面图2:布置排风管和排风口;布置新风管和新风口,新风由新风机房提供。
3.平面图3:补充布置排烟管、排烟口和室内消火栓。
4.平面图4:布置标准喷头。
5.根据作图结果,先完成作图选择题的作答。





【参考答案】



