设计任务
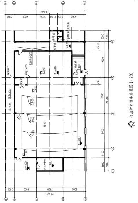
下页图为某学校合班教室平面图,采用集中空调系统,具体要求如下:1.送风要求:主风道初始断面面积≮0.65㎡;通往教室的主风道初始断面面积≮0.55㎡;教
室送风末段支风道的面积≮0.18㎡,断面尺寸为600mm×300mm;声光控制室支风道的面积≮0.15㎡,风道不得占用其他设备空间,送风口的形式可根据吊顶的形式采用下送或侧送两种方式。
2.回风要求:主风道初始断面面积≮0.49㎡;教室内②-④轴梁的高度为1400mm,轴梁的高度为750mm,⑤轴门洞处的梁高为650mm。走廊可以不考虑送回风,送回风主风道经清洁室吊顶与竖向风井连接。
任务要求
送风道与送风口布置,并标出断面尺寸(宽×高);回风道与回风口布置,并标出断面尺寸(宽×高);排风管道与排风口设置。



参考作图提示
