任务说明
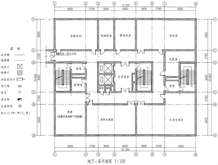
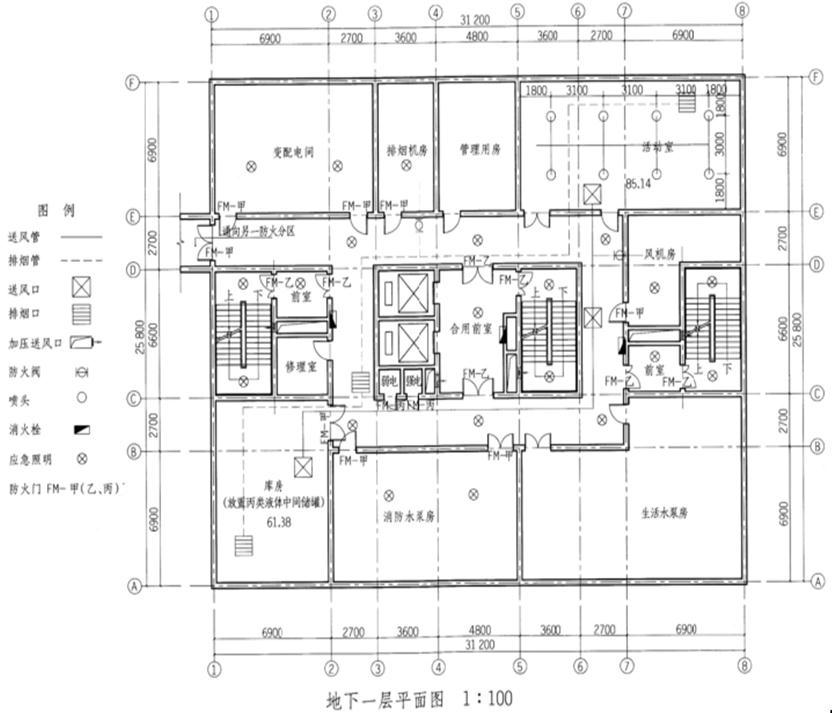
如图所示,某100m以下一类高层地下一层平面图,按要求布置消防送风、防烟、排烟、喷淋、消火栓、紧急照明。
任务要求
在平面图中,根据给出的图例,按以下要求完成相关设备的布置。1.标注图中防火门(甲、乙、丙级)。2.按照给定的平面功能合理布置地下一层消防送风、防烟、排烟口的设置,风管采用图示单
线表示,并注明防火阀的设置位置。
3.合理布置地下一层消火栓及按最少要求(喷水强度6L/min*㎡)布置活动室的自动喷水灭火系统的消防闭式喷头,并标出各喷头的定位尺寸。
4.合理布置地下一层应急照明。


参考作图提示
