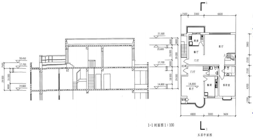
<p>设计任务 根据所给跃层住宅的顶部两层平面,绘出剖面图。1.结构类型:砖混结构,现浇钢筋混凝土楼板。2.120mm厚钢筋混

分类: 建筑技术设计(作图题) 发布时间: 2023-11-03 00:00 浏览量: 0

设计任务 根据所给跃层住宅的顶部两层平面,绘出剖面图。1.结构类型:砖混结构,现浇钢筋混凝土楼板。2.120mm厚钢筋混凝土楼板。 设计要求 1.根据平面图所给的剖切线位置画出建筑剖面简图,标注各部分标高。 2.表示出下列内容: 女儿墙、屋顶平台栏杆、墙体、门窗、楼板等。

参考作图提示