设计任务
根据所给某坡地住宅各层平面图及屋顶平面图,按指定的剖切线位置画出剖面图。剖面图应正确反映出平面图所表示尺寸及空间关系,并应符合构造要求。
构造要求
结构类型:砖砌体承重,现浇钢筋混凝土楼面及屋面。
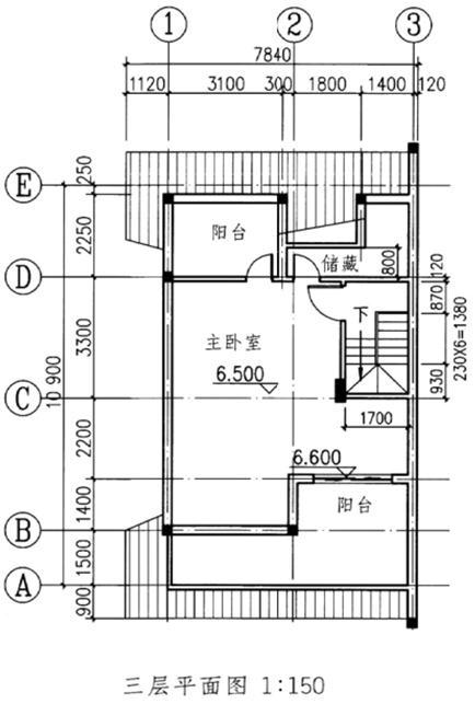
层高:一层3500mm(局部2750mm),二层3000mm,三层檐口最低处标高7200mm。
基础:240mm砖砌体放脚,C10混凝土680mm(宽)×340mm(高)条形基础。基础埋深为室外地面下1000mm。
地面:素土分层夯实,100mm厚C10混凝土垫层,20mm厚水泥砂浆找平,上贴地砖(平台面层做法同地面)。
楼面:20mm厚水泥砂浆找平,上铺8mm厚复合木地板。
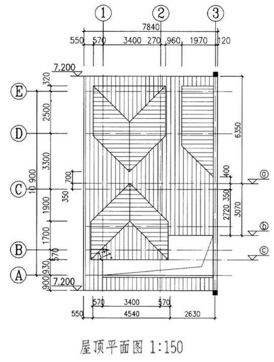
屋面:二坡顶或三坡顶,屋面坡度1:2。100mm厚现浇混凝土斜屋面板,20mm厚水泥砂浆找平层,2mm厚防水涂膜,粘贴防水卷材,上贴25mm厚聚苯乙烯保温隔热板,40mm厚细石混凝土找平层,内配φ6@500mm×500mm钢筋网,随贴瓦楞形面砖,挑檐自由落水。
外墙:240mm厚砖砌体,20mm厚抹灰,面涂涂料。
内墙:240mm承重墙,120mm厚非承重墙,20mm厚抹灰,面涂涂料。梁:全部为钢筋混凝土梁,承重梁240mm(宽)×500mm(高)。
门:外门高均至梁下,入户门宽1200mm,房门宽900mm,卫生间门宽700mm,平台推拉门宽2400mm。窗:窗上皮均至梁下,窗台高900mm,挑空部分无窗台。
楼梯:构造做法同楼面,基础C10细石混凝土500mm(宽)×300mm(高),埋深室外地坪下1000mm。防潮层:水泥砂浆防潮层。
作图要求
1.画出1:100剖面图,包括基础、楼地面、屋面、内外墙、门窗、楼梯、梁、防潮层及可视线等。
2.注明室内、外各层标高,屋脊板面标高。
3.注明外沿及有关门窗高度尺寸。



参考作图提示
