【试题要求】
1.任务描述
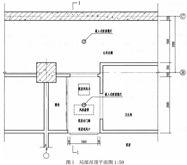
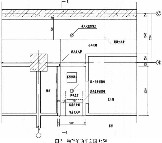
图1为某旅馆单面公共走廊、客房内门廊的局部吊顶平面图,客房采用常规卧式风机盘管加新风的供冷暖空调系统。要求在图21-1剖面图中按照提供的图例进行合理的管线综合布置。

2.任务要求
(1)在1-1剖面图单面公共走廊吊顶内按比例布置新风主风管、走廊排烟风管、电缆桥架、喷淋水主管、冷冻供水主管、冷凝水主管,并标注前述设备名称、间距。
(2)在1-1剖面图客房内门廊吊顶内按比例布置新风支风管、风机盘管送风管、冷冻供水支管、冷凝水支管,表示前述设备与公共走廊吊顶内设备以及客房送风口的连接关系,并注出名称。
3.布置要求
(1)风管、电缆桥架、结构构件、吊顶下皮相互之间最小间距为100mm。
(2)水管主管应集中排列;水管主管之间,水管主管与风管、电缆桥架、结构构件之间的最小净间距为50mm。
(3)所有风管、水管、电缆桥架均不得穿过结构构件。
(4)无需表示设备吊挂构件。
(5)电缆桥架不宜设置于水管正下方。
(6)新风应直接送入客房内。
4.图例(见下表)

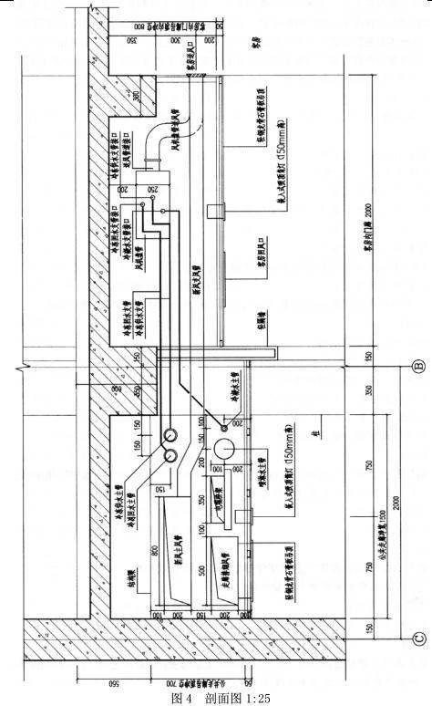
详见图 3、图 4。

