【试题要求】
1.任务描述
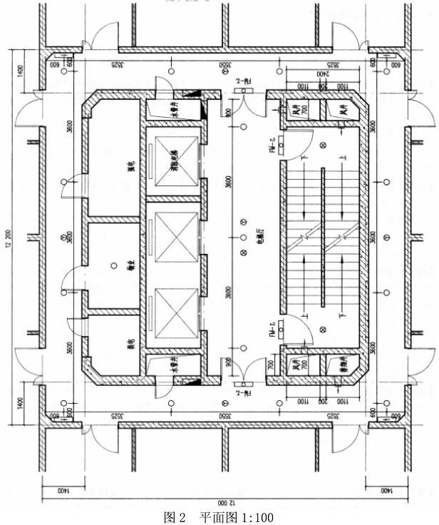
图1是24层高级公寓标准层(建筑面积1450㎡)的核心筒及走廊平面图,在图中按照防火规范进行消防设施的布置,在考虑建筑美观的前提下,要求布置做到最少、最经济合理。钢筋混凝土墙上可开洞。
2.任务要求
(1)消防排烟部分:
1)在应设机械加压送风的部位画出送风口及竖井,并注明竖井尺寸,每个送风竖井面积不小于0.5㎡。
2)在应设机械排烟的部位画出排烟口及竖井,并注明竖井尺寸,每个排烟竖井面积不小于0.5㎡。
(2)消防报警部分:按最少的要求布置烟雾感应器。
(3)灭火系统部分:
1)按最少的要求布置自动喷水灭火系统的消防喷头并注明间距。
2)布置室内消火栓。
(4)消防疏散部分:
1)布置火灾应急照明灯。
2)布置安全出口标志灯。
3)布置疏散指示灯。
4)标明应设置的乙级防火门。
5)标明消防电梯。
3.图例(见下表)

详见图 2。
