【试题要求】
1.任务描述
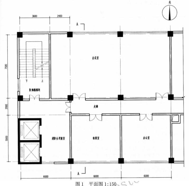
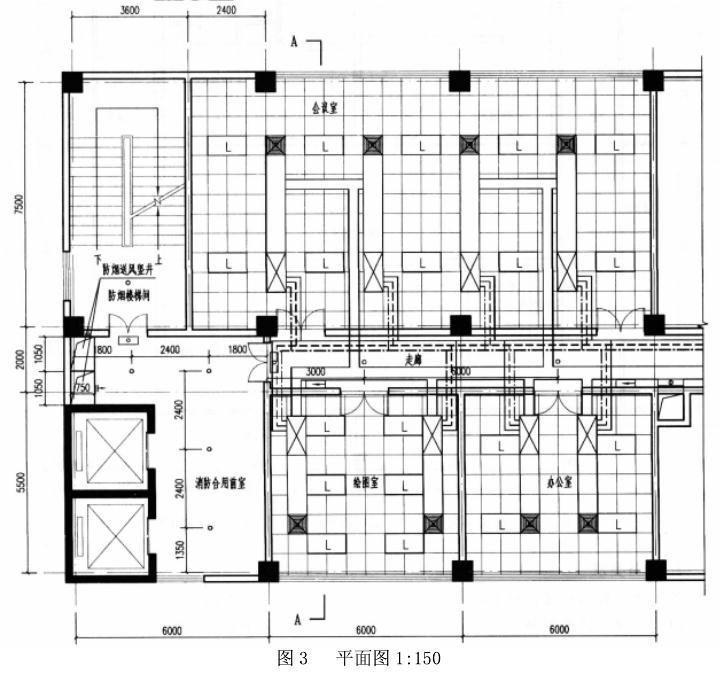
图1、图2为某科研办公楼第18层的局部平面图、剖面图,按照要求做出空调及照明平面布置图,既要考虑送风及照度均匀,又要照顾顶棚布置的美观协调,且符合规范要求。本题不考虑烟感系统和喷淋系统。

2.任务要求
按提供的图例绘制平面布置图。
(1)顶棚部分:房间为600mm×600mm铝合金板,走廊及合用前室为石膏板。
(2)空调部分:采用风机盘管加新风的空调系统:会议室采用4个风机盘管,其他房间2个风机盘管(空调的供水管、回水管及凝结水管由走廊的东面接入)。在应设加压送风防烟的部位画出防烟送风口及送风竖井。每个送风竖井面积不小于0.75㎡。
(3)照明部分。
1)灯具:会议室,绘图室、办公室的灯具为嵌入式荧光灯盘,规格为600mm×1200mm。消防合用前室、楼梯间及走廊为白炽灯。
2)数量:荧光灯盘数量:会议室10个,绘图室6个,办公室为4个。消防合用前室布置4盏白炽灯,走廊每隔6m布置1盏白炽灯,楼梯间布置2盏白炽灯。
3.布置要求
在平面图上,用提供的图例符号,做出布置图,包括以下内容:
(1)平顶铝合金板分隔布置。
(2)风机盘管及散流器布置。
(3)空调管道系统布置。
(4)防烟送风竖井布置。
(5)照明灯具布置。
(6)安全出口标志灯,疏散指示灯布置。
4.图例

详见图 3。
