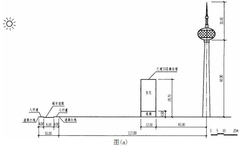
<p>【设计条件】 ·某场地沿正南北向的剖面,如图(a)所示。 ·在城市道路与已建10层商住楼之间拟建一幢各层层高均为4.5

分类: 场地设计(作图题) 发布时间: 2023-11-03 00:00 浏览量: 1

【设计条件】 ·某场地沿正南北向的剖面,如图(a)所示。 ·在城市道路与已建10层商住楼之间拟建一幢各层层高均为4.5m、平屋面(室内外高差及女儿墙高度不计)的商业建筑。 ·拟建商业建筑与已建10层商住楼均为条形建筑,正南北向布置,耐火等级均为二级。 ·规划要求拟建商业建筑后退道路红线不小于15m,在人行道视点高度1.5m处可以看到观光塔上部不少于塔高1/3(以塔身中心线为准)。 ·当地住宅建筑日照间距系数为1.5。 ·应满足国家有关规范要求。

B