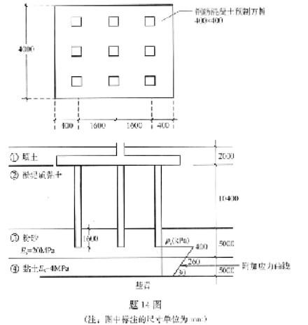
某桩基工程安全等级为二级、其桩型平面布置、剖面及地层分布如图所示,土层及桩基设计参数见图中注,作用于桩端平面处的有效附加应力为4

分类: 岩土专业案例 发布时间: 2023-11-03 00:51 浏览量: 2

某桩基工程安全等级为二级、其桩型平面布置、剖面及地层分布如图所示,土层及桩基设计参数见图中注,作用于桩端平面处的有效附加应力为400kPa(长期效应组合),其中心点的附加压力曲线如图所示(假定为直线分布)。沉降经验系数φ=1,地基沉降计算深度至基岩面,按《建筑桩基技术规范》(JGJ94一94)验算桩基最终沉降量,其计算结果最接近()。 A.3.6cm

A.5.4cm

B.7.9cm

C.8.6cm

D.

正确答案是B