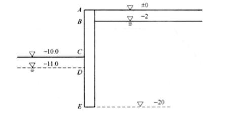
基坑剖面如图所示,已知土层天然重度为20kN/m3,有效内摩擦角Φ'=30°,有效黏聚力c'=0,若不计墙两侧水压力,按朗肯土压力理论分别计算支护结构底部正点内外两侧的被动土压力强度ep及主动土压力强度ea最接近()。(水的重度为γw=10kN/m3)

A.被动土压力强度ep=330kPa,主动土压力强度ea=73kPa
B.被动土压力强度ep=191kPa,主动土压力强度ea=127kPa
C.被动土压力强度ep=600kPa,主动土压力强度ea=133kPa
D.被动土压力强度ep=346kPa,主动土压力强度ea=231kPa
正确答案是A