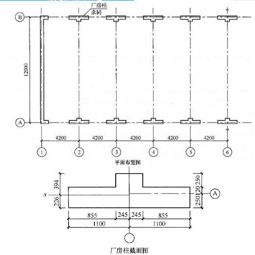
<p>某单层单跨砌体承重的无吊车厂房,如图所示。采用装配式无檩体系钢筋混凝土屋盖,厂房柱的高度H=5.6m。砌体采用MU20级混

分类: (结构) 专业考试一级 发布时间: 2023-11-03 00:56 浏览量: 1

某单层单跨砌体承重的无吊车厂房,如图所示。采用装配式无檩体系钢筋混凝土屋盖,厂房柱的高度H=5.6m。砌体采用MU20级混凝土多孔砖,Mb10级专用砂浆砌筑,砌体施工质量控制等级为B级。其结构布置和构造措施均符合规范要求。 提示:厂房柱的截面面积A=0.9365×106mm2,绕形心轴x的回转半径i=147mm。 假设,房屋静力计算方案为弹性方案,厂房柱柱底截面绕x轴的弯矩设计值M=52kN·m,轴向压力设计值为404kN,截面重心到轴向力所在偏心方向截面边缘距离y=394mm。试问,厂房柱的受压承载力设计值(kN),与下列何项数值最为接近?

A.630

B.680

C.730

D.780

正确答案是C