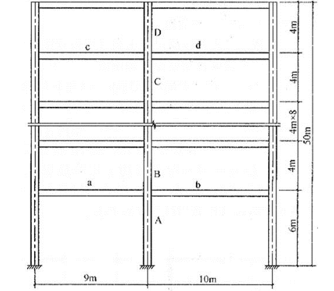
<p>某钢结构建筑采用框架结构体系,框架简图如图所示。结构位于8度(0.20g)抗震设防区,抗震设防类别为丙类。框架柱采用焊接箱

分类: (结构) 专业考试一级 发布时间: 2023-11-03 00:56 浏览量: 1

某钢结构建筑采用框架结构体系,框架简图如图所示。结构位于8度(0.20g)抗震设防区,抗震设防类别为丙类。框架柱采用焊接箱形截面,框架梁采用焊接工字形截面,梁柱钢材均采用Q345,框架结构总高度H=50m。 提示:要求按《钢结构设计标准》(GB50017-2017)作答。 假设,该框架增加一层至H=54m。试问,进行抗震性能化时,框架梁塑性耗能区(梁端)截面板件宽厚比,采用下列何项等级最为合适?

A.S1

B.S2

C.S3

D.S4

正确答案是A