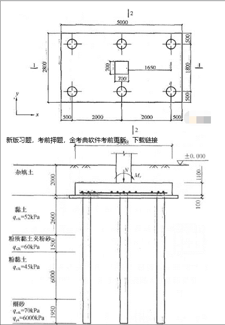
<p>有一六桩承台基础,采用先张法预应力混凝土管桩,外径500mm,壁厚100mm,C80混凝土,无桩尖。有关地基各土层、桩端土

分类: (结构) 专业考试一级 发布时间: 2023-11-03 00:56 浏览量: 0

有一六桩承台基础,采用先张法预应力混凝土管桩,外径500mm,壁厚100mm,C80混凝土,无桩尖。有关地基各土层、桩端土极限端阻力标准值qpk、桩侧土极限摩阻力标准值qsik及桩布置、承台尺寸如图所示。假定,荷载效应的基本组合由永久荷载控制,承台及其上土的平均重度取22kN/m3。 提示:荷载组合按简化原则,γ0=1.0。 试问,按照《建筑桩基技术规范》(JGJ94—2008),根据土的物理指标与承载力参数之间的经验关系计算的单桩竖向承载力特征值Ra(kN),为以下何项数值?(  )

A.800

B.1000

C.1500

D.2000

正确答案是B