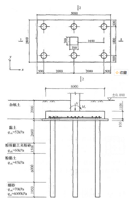
<p>有一六桩承台基础,采用先张法预应力混凝土管桩,外径500mm,壁厚100mm,C80混凝土,无桩尖。有关地基各土层、桩端土

分类: (结构) 专业考试一级 发布时间: 2023-11-03 00:56 浏览量: 0

有一六桩承台基础,采用先张法预应力混凝土管桩,外径500mm,壁厚100mm,C80混凝土,无桩尖。有关地基各土层、桩端土极限端阻力标准值qpk、桩侧土极限摩阻力标准值qsik及桩布置、承台尺寸如图所示。假定,荷载效应的基本组合由永久荷载控制,承台及其上土的平均重度取22kN/m3。 提示:荷载组合按简化原则,γ0=1.0。 假定,不考虑地震作用,承台顶面中心弯矩标准值Mkx=0,最大单桩反力设计值为1180kN,承台采用C35混凝土(ft=1.57N/mm2),HRB400钢筋(fy=360N/mm2),h0=1000mm。试问,下列承台长向受力主筋配置方案哪个合理?(  )

A.20@100

B.22@100

C.22@150

D.25@100

正确答案是B